Vendita Villa

Villa

Contrada Dara, Marsala, Trapani

238.000 €
150
mq
4
Locali
3
Camere
2
Bagni

Recensisci questo Immobile

Devi essere registrato per lasciare una recensione.

Accedi

Nessuna recensione ancora. Sii il primo!

Descrizione

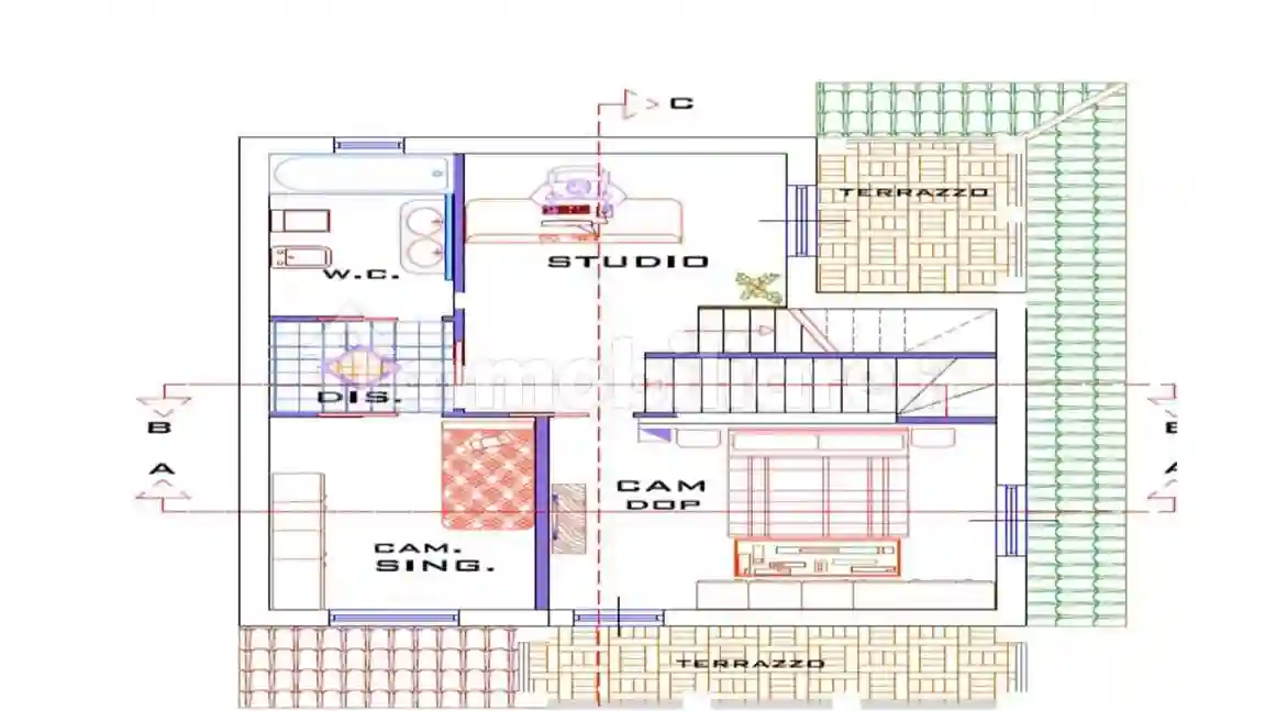
A Marsala in vendita, in c/da Dara, zona alquanto panoramica, villetta unifamiliare da costruire di 150mq su tre livelli con 350mq di terreno, composta da cucina, soggiorno, camera, 2 camere, 2 bagni, studio, ripostiglio inoltre la pavimentazione prevista e' la ceramica.
E' possibile visionarlo ogni giorno previo appuntamento telefonico.

Caratteristiche

Piano T
Ascensore No
Stato Nuovo / In costruzione

Posizione

Laguna Blu

Agenzia

Referente

Laguna Blu

Storico

Pubblicato 21 Jan 2026
Aggiornato 24 Feb 2026
Sul mercato 34 giorni
ID Annuncio 100388690