Vendita Appartamento

Appartamento

San Giuliano Terme, Pisa

Prezzo
89
mq
4
Locali
2
Camere
2
Bagni

Recensisci questo Immobile

Devi essere registrato per lasciare una recensione.

Accedi

Nessuna recensione ancora. Sii il primo!

Descrizione

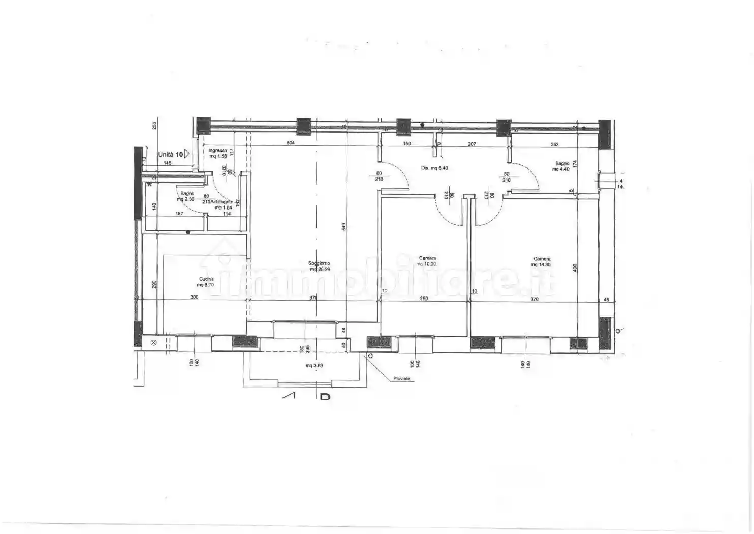
CAPOLUOGO - CLASSE ENERGETICA A+++ Appartamento in vendita al secondo e ultimo piano di 89 mq con ascensore - composto di soggiorno con accesso diretto alla terrazza, cucina abitabile disimpegno, antibagno/bagno, ulteriore disimpegno notte, camera matrimoniale, camera doppia, bagno; al piano seminterrato è presente un garage di 19 mq. Alti standard qualitativi: pavimento radiante, pannelli solari per la produzione di acqua calda, portone blindato, possibilità di personalizzare gli immobili con scelta diretta da parte del cliente di pavimenti, rivestimenti, sanitari/ rubinetterie, porte interne
Classe energetica: A3 - Rif. 1171

Caratteristiche

Piano 2
Ascensore Si
Stato Nuovo / In costruzione
Riscaldamento Autonomo, a pavimento

Posizione

2M Immobiliare S.r.l.

Agenzia

Referente

2M Immobiliare S.r.l.

Storico

Pubblicato 14 Jan 2026
Aggiornato 20 May 2026
Sul mercato 127 giorni
ID Annuncio 100768121