Indietro
Vendita Villetta a schiera

Villetta a schiera

Via della Croce, Signa, Firenze

Prezzo
Buon Prezzo: 16% sotto la media
130
mq
4
Locali
2
Camere
1
Bagni

Recensisci questo Immobile

Devi essere registrato per lasciare una recensione.

Accedi

Nessuna recensione ancora. Sii il primo!

Descrizione

PROSSIMA REALIZZAZIONE Signa - San Mauro a Signa, in ottima posizione centrale e vicina a tutti i servizi, prossima realizzazione di complesso immobiliare caratterizzato da Ville, Villette e appartamenti.
Del complesso delle VILLETTE A SCHIERA, ancora disponibili le due villette centrali e una laterale.
Il complesso è caratterizzato da un viale pedonale e carrabile a comune.
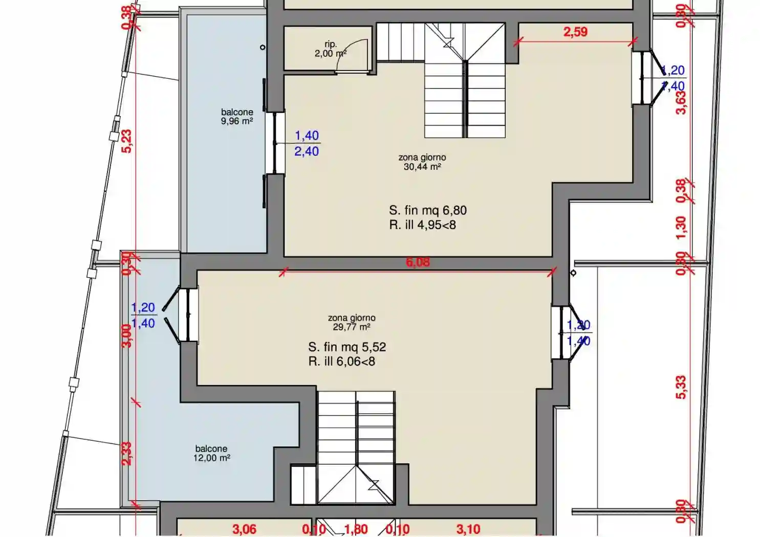
Nello specifico descriviamo la villetta a schiera centrale numero 2. La casa si sviluppa su 3 livelli e dispone di un garage doppio al piano terra. Gode inoltre un giardino esclusivo frontale e di una veranda tergale. Ingresso dal piano terra, tramite scala interna si accede alla zona giorno che si sviluppa interamente al primo piano, caratterizzata da un soggiorno e una cucina open space di circa 30 mq. Al primo piano troviamo anche un comodo ripostiglio ed un ampio balcone. La zona notte al secondo piano include una spaziosa camera matrimoniale, una camera singola e un bagno finestrato. Infine, il piano mansarda offre un unico vano di circa 21 mq e una terrazza di circa 13 mq. Altezze generose garantiscono uno sfruttamento totale. La prenotazione è possibile, i lavori inizieranno nel primo trimestre del 2026 e avranno una durata prevista di 16 mesi. La casa sarà dotata di impianti di ultima generazione, isolamento termico caldo/freddo, pannelli fotovoltaici e riscaldamento a pavimento con pannelli radianti. La classe energetica prevista è A4. Le immagini degli arredi interi sono indicative e non rappresentano la realtà. La casa ha una superficie commerciale di 152 m² e una superficie calpestabile di 130 m². Dispone di 4 locali, mansarda, 1 bagno, 1 ripostiglio, terrazza, veranda e garage. È una nuova costruzione, mai abitata in precedenza, con armadi a muro. L'anno di costruzione è il 2026 e l'orientamento è a sud. Il terreno ha una superficie di 32 m². Dotata di giardino esclusivo e veranda.
Villetta n.1 Richiesta € 445.000
Villetta n.3 Richiesta €435.000
Per maggiori informazioni, visualizzare i progetti il capitolato e info sulle Modalità di pagamento, contattate Ag. archImmobiliare al 3497270593.

Caratteristiche

Ascensore No
Stato Nuovo / In costruzione
Riscaldamento Autonomo, a pavimento, alimentato a solare

Servizi e accessori

Cancello elettrico Esposizione interna Impianto di allarme Impianto tv singolo Infissi esterni in triplo vetro / PVC Mansarda Porta blindata VideoCitofono

Posizione

Referente

Falvo Paola C/O Arch Immobiliare

Storico

Pubblicato 24 Feb 2026
Aggiornato 27 Feb 2026
Sul mercato 3 giorni
ID Annuncio 100784349

Recensioni

Vedi tutte
B

Bianca Terranova

4.7

Ho appena acquistato la mia prima casa e sono molto soddisfatta del risultato. Sono stata seguita con efficienza nella gestione di tutta la burocrazia e la disponibilità dello staff mi ha davvero rass...