Indietro
Vendita Palazzo - Edificio

Palazzo - Edificio

Via della Conciliazione, 9, Maglie, Lecce

1.000.000 €
Ottimo Affare: 41% sotto la media
2500
mq
5+
Locali
3+
Bagni

Recensisci questo Immobile

Devi essere registrato per lasciare una recensione.

Accedi

Nessuna recensione ancora. Sii il primo!

Descrizione

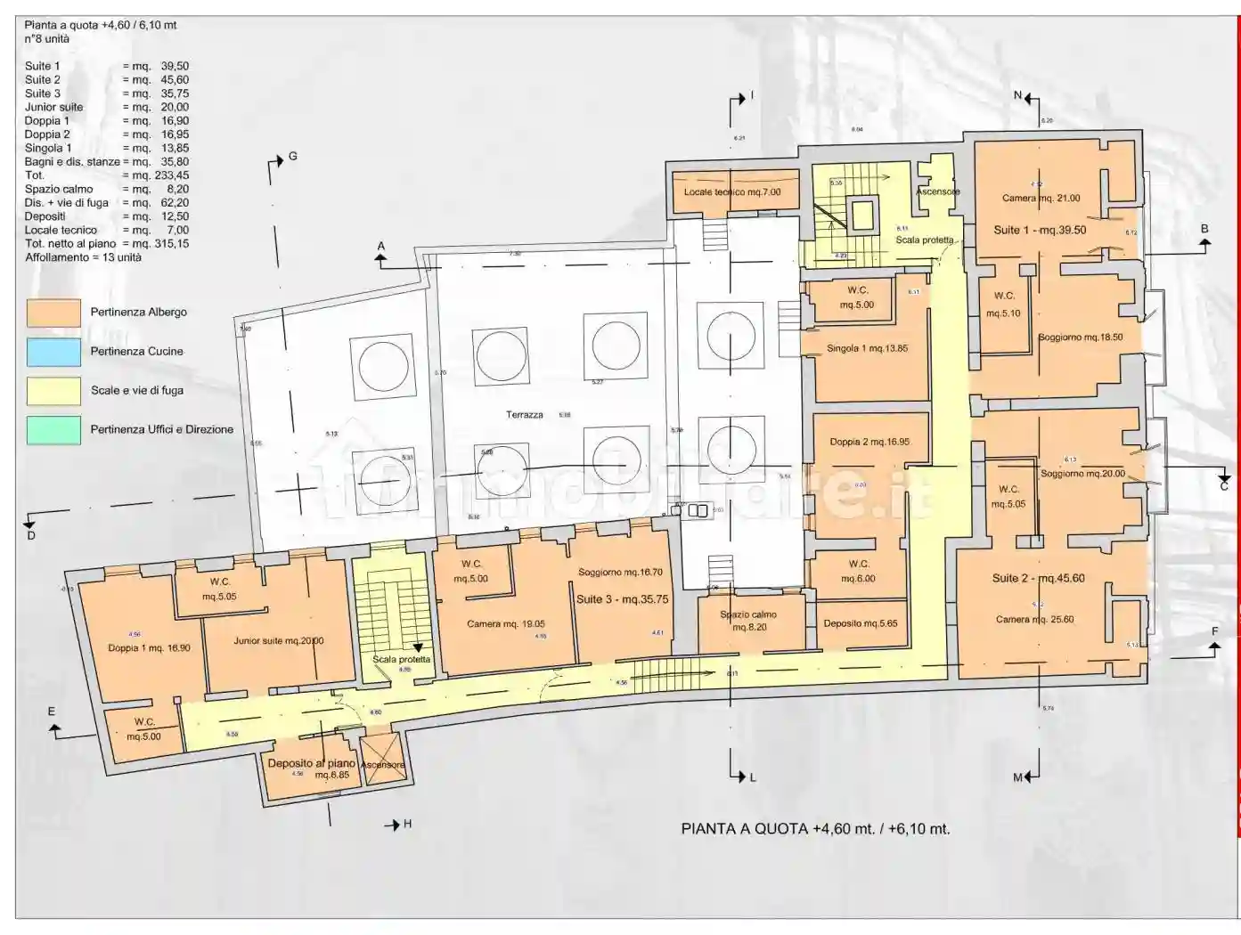
Da Ristrutturare, palazzo storico fine '800. Siamo nel centro Storico di MAGLIE (Le), graziosa cittadina barocca, vero e proprio punto di riferimento per il basso Salento, a pochi chilometri da località considerate tra le più affascinanti e suggestive d'Italia, come OTRANTO, SANTA CESAREA TERME, CASTRO MARINA, TRICASE, SANTA MARIA DI LEUCA, GALLIPOLI, LECCE, vendesi prestigioso immobile storico di fine '800 inizi 900 un tempo adibito ad Hotel, rimasto in attività sino agli anni '90. L'intero immobile si presta ad ambiziosi progetti di ristrutturazione sia di edilizia residenziale che soprattutto in ambito turistico/alberghiero (sua collocazione naturale). L'immobile si sviluppa su 4 piani oltre seminterrrato, ampio terrazzo, piccola corte interna. Sono ricavabili da ristrutturazione sia appartamenti che, in ottica ristrutturazione alberghiera, secondo progetto boutique hotel 5 stelle già sviluppato ed a disposizione, circa 22 camere suite, oltre ampi spazi da dedicare all'accoglienza, ai servizi, la ristorazione, area benessere ecc.
Si valutano proposte di acquisto a corpo dell'intero immobile all'attuale stato d'uso o locazione con riscatto. L'immobile ha requisiti per l'accesso ai fondi pubblici agevolati (contributi a fondo perduto) previsti per la ristrutturazione ed il recupero di edifici storici da destinare ad attività turistico-ricettive.

Caratteristiche

Piano T
Ascensore Si

Posizione

Agenzia Immobiliare

Storico

Pubblicato 14 Jan 2026
Aggiornato 23 Feb 2026
Sul mercato 42 giorni
ID Annuncio 102712362