Indietro
Appartamento
Asta
Asta Appartamento

Appartamento

Via Mafalda di Savoia, Fagnano Castello, Cosenza

18.427 €
Ottimo Affare: 39% sotto la media
109
mq
4
Locali

Recensisci questo Immobile

Devi essere registrato per lasciare una recensione.

Accedi

Nessuna recensione ancora. Sii il primo!

Descrizione

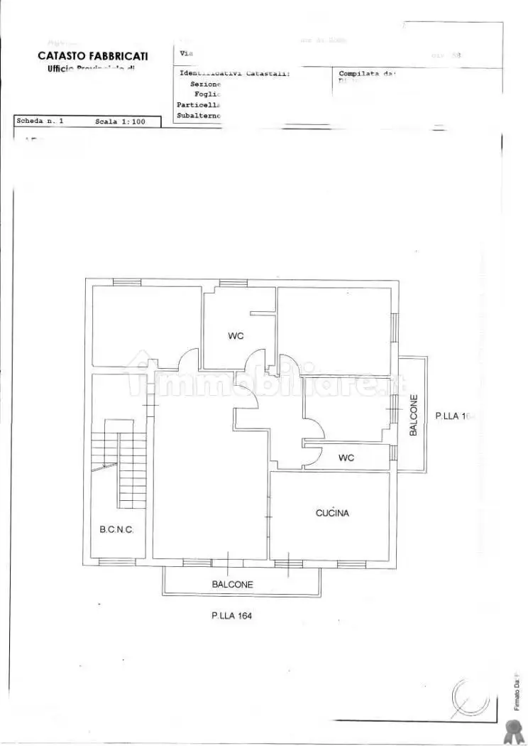
Tribunale di Cosenza. RGE 67/2005. Fagnano Castello (CS) Via Mafalda di Savoia 92: Lotto 1) Appartamento al piano primo, interno 1, di fabbricato per civile abitazione, composto da 4 vani catastali. Superficie commerciale mq 109,60, oltre diritti pro quota sulle parti comuni. Occupato, ordine di liberazione in corso di esecuzione. Prezzo base: Euro 24.569,00. Offerta minima: Euro 18.427,00. Lotto 2) Appartamento al piano secondo, interno 2, di fabbricato per civile abitazione, composto da 4 vani catastali. Superficie commerciale mq 109,60, oltre diritti pro quota sulle parti comuni. Occupato, ordine di liberazione in corso di esecuzione. Prezzo base: Euro 24.569,00. Offerta minima: Euro 18.427,00. Vendita senza incanto con modalita" sincrona mista 28/05/2020 ore 16:15 presso Sede della Associazione Notarile Esecuzioni Pro.E.N.C. sita nel Tribunale Ordinario di Cosenza, piano primo - stanza n. 33. G.E. Dott.ssa Ianni Giusi. Professionista Delegato e Custode Notaio Dott.ssa Gisonna Maria tel. 0984408479. Per maggiori informazioni e per consultare la documentazione visitare il sito ufficiale del Tribunale inserendo il nr. RGE sul motore di ricerca. RICORDIAMO CHE la vendita non prevede alcun costo a carico dellacquirente se non le imposte di legge e quelle espressamente disciplinate. I dati relativi alla vendita giudiziaria devono essere sempre verificati sull'avviso di vendita, ordinanza e perizia

Caratteristiche

Piano 1° piano
Riscaldamento Assente

Posizione

Referente

Notaio Dott. Gisonna Maria 0984408479

Storico

Pubblicato 27 Dec 2025
Aggiornato 15 Feb 2026
Sul mercato 54 giorni
ID Annuncio 102978604

Recensioni

Vedi tutte
S

Silvano Costanzo

4.0

Dopo alcune esperienze deludenti in passato, questa agenzia si è rivelata molto più trasparente e professionale. Mi ha seguito passo dopo passo nella ricerca di un appartamento più grande per la mia f...