Vendita Rustico - Casale

Rustico - Casale

Via Della Mina, 6, Sorbolo Mezzani, Parma

340.000 €
146
mq
4
Locali
3
Camere
3
Bagni

Recensisci questo Immobile

Devi essere registrato per lasciare una recensione.

Accedi

Nessuna recensione ancora. Sii il primo!

Descrizione

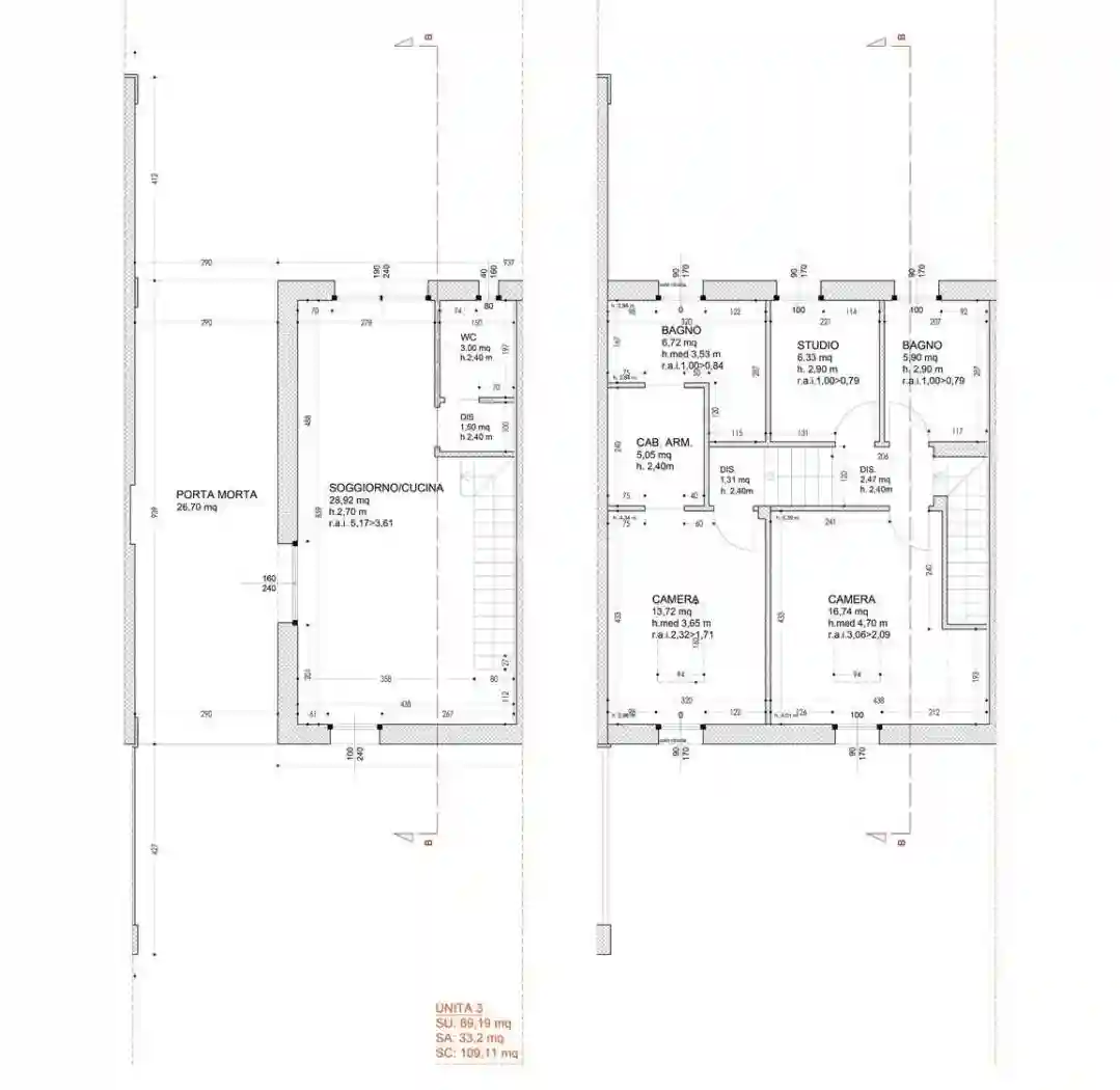
RICOSTRUZIONE RUSTICO FONTANELLE IN VIA MINA:

Nella parte centrale del residence Fontanelle proponiamo una soluzione su due livelli, ampio portico ed area esterna.
L'immobile presenta al piano terra un soggiorno e cucina open space, bagno, con accesso mediante una scala interna al piano superiore dove troviamo una camere patronale con cabina armadio e bagno privato, ampia camera matrimoniale, studio e un ulteriore servizio finestrato.
Completa il tutto pannelli fotovoltaici, due posti auto di cui uno coperto, possibilità di installare colonnina elettrica e di realizzare un ulteriore piano sottotetto.
Ricostruendo l'immobile si ha la possibilità di usufruire delle agevolazioni del sismabonus fino a 96000,00, otre agli altri bonus esistenti

Caratteristiche

Ascensore No
Stato Nuovo / In costruzione
Riscaldamento Autonomo, a pavimento, alimentato a solare

Posizione

Referente

Affiliato Tecnocasa: DIADEMA SRLS

Storico

Pubblicato 15 Jan 2026
Aggiornato 24 Feb 2026
Sul mercato 42 giorni
ID Annuncio 105076215

Recensioni

Vedi tutte
R

Rossana Pace

4.7

Appena sono entrata in agenzia sono stata colpita dalla loro attenzione ai dettagli e dalla familiarità con le normative locali. Mi hanno seguita passo dopo passo nella scelta della casa al mare, rend...

N

Noemi Rizzi

4.3

Ho venduto la casa in tempi rapidi e senza intoppi, grazie al supporto impeccabile dell’agenzia. Mi sono sentita ascoltata e seguita in ogni fase, anche quando si trattava di gestire il mutuo, e quest...

V

Valeria Ferraro

4.3

Durante tutto il processo mi sono sentita molto tranquilla, anche perché sono stata seguita e aiutata passo dopo passo. Le spiegazioni erano sempre chiare e semplici da capire, e la disponibilità è st...