Vendita Progetto

Progetto

Via Vallona, 9, Pordenone, Pordenone

Prezzo su richiesta
100
mq
null
Locali

Recensisci questo Immobile

Devi essere registrato per lasciare una recensione.

Accedi

Nessuna recensione ancora. Sii il primo!

Descrizione

Posizionata nel centro di Pordenone in una zona tranquilla e servita, la Residenza "Steel Tower" viene edificata con l'obiettivo di proporre soluzioni diverse attraverso un design moderno ed esclusivo.

L'attenzione all'ambiente e la massimizzazione del Risparmio Energetico rendono questo progetto particolarmente sostenibile.

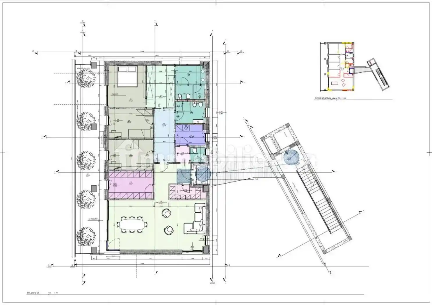
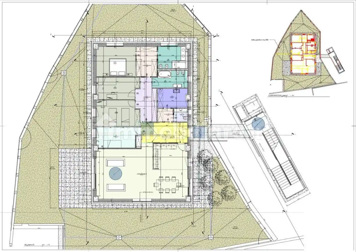
L'immobile sarà sviluppato in sei piani e suddiviso:

- PIANO TERRA: garage e cantine
- PRIMO PIANO: appartamento unico con giardino pensile privato
- SECONDO/TERZO PIANO: due appartamenti ad ogni livello con terrazzo
- QUARTO PIANO: VENDUTO
- QUINTO/SESTO PIANO: appartamento unico con terrazzo

Tutti gli appartamenti verranno realizzati ai massimi livelli di Risparmio Energetico, di efficienza e confort abitativo quali:
- impianto fotovoltaico;
- avvolgibili motorizzati e tende oscuranti motorizzate;
- serramenti di alta qualità e risparmio energetico;
- riscaldamento a pavimento;
- innovativo sistema a Pompa di Calore;
- sanitari sospesi;
- ampia disponibilità di pavimenti in gres e legno di prima scelta;
- portoncino blindato Classe 3;
- classe Energetica A4;
- massima insonorizzazione ed efficienza statica;
- impianto di condizionamento;
- ascensore .

Fissi un appuntamento per avere ulteriori informazioni telefonando al numero 0434/362080.
Orari di apertura: 8.30-12.30 14.30-18.30

Caratteristiche

Stato Nuovo / In costruzione
Riscaldamento Centralizzato, a pavimento, alimentato a pompa di calore

Servizi e accessori

Infissi esterni in triplo vetro / legno Parcheggio bici

Posizione

Referente

Immobiliare Colonna

Storico

Pubblicato 12 Jan 2026
Aggiornato 24 Feb 2026
Sul mercato 44 giorni
ID Annuncio 105658023

Recensioni

Vedi tutte
A

Alice Franca

5.0

Grazie di cuore, sono stata davvero felice con questa agenzia! Mi hanno aiutata a trovare un appartamento con vista mare a Porcia, conoscendo benissimo il mercato locale e spiegandomi tutto con molta...

F

Federica Cavalli

5.0

Ricordo ancora il momento in cui ho firmato il contratto della mia prima casa, un emozione indescrivibile! Sono stata davvero aiutata e seguita passo dopo passo, soprattutto nella fase del mutuo, che...

C

Cesare Tommasi

4.7

Le mie precedenti esperienze con altre agenzie erano state complicate, ma questa volta ho trovato un supporto rapido e professionale. Sono stato seguito passo dopo passo e ho trovato facilmente il mag...

C

Chiara Baroni

4.3

Apprezzavo la cura con cui mi hanno seguita fin dal primo incontro, sempre disponibili e pazienti nel rispondere a ogni mia domanda. La loro serietà e professionalità mi hanno fatta sentire sicura nel...

L

Leonardo Rosati

4.0

Ho venduto un locale commerciale a Porcia e sono stato molto colpito dall’efficienza dell’agenzia nella gestione di tutta la burocrazia. Mi hanno seguito passo dopo passo, riuscendo a rendere la tratt...