Appartamento
Vendita
Vendita Appartamento

Appartamento

Via Calabria, Cervia, Ravenna

370.000 €
90
mq
4
Locali
3
Camere
2
Bagni

Recensisci questo Immobile

Devi essere registrato per lasciare una recensione.

Accedi

Nessuna recensione ancora. Sii il primo!

Descrizione

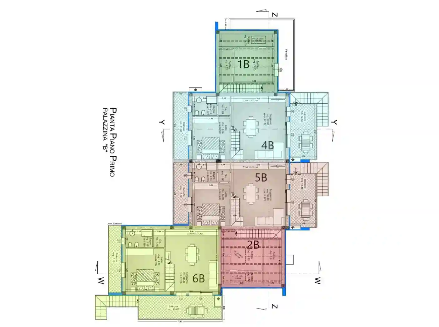
PINARELLA DI CERVIA - A poca distanza dal mare in zona tranquilla, completa di verde , parcheggi e nuove villette già abitate, proponiamo in vendita appartamento con tre camere da letto. L'immobile si sviluppa al piano primo con ingresso indipendente, soggiorno con angolo cottura, disimpegno, camera matrimoniale affacciata sul balcone, bagno finestrato; al piano secondo mansardato, disimpegno, due camere da letto e secondo bagno.
Completa la soluzione garage al piano interrato. Consegna Estate 2026

Agenzia Immobiliare Ritmo
Chi siamo
L'Agenzia immobiliare Ritmo si occupa di intermediazione immobiliare dal 1979.

Specializzata nella commercializzazione di immobili di vario genere, dai terreni e appartamenti alle ville al mare e nell'entroterra ROMAGNOLO, con un'ampia scelta di immobili selezionati e controllati, tutti di certificato valore e sicuro investimento, dal piccolo e poco impegnativo monolocale alla prestigiosissima villa in riva al mare.

La nostra zona operativa si estende a tutta la Romagna.
La nostra specializzazione nel settore immobiliare turistico/residenziale fa sì che L'Agenzia immobiliare Ritmo sia leader nel settore, offrendo assoluta affidabilità e garanzia a coloro che volessero mettersi in contatto con essa.

Alla nostra clientela garantiamo la totale assistenza tecnica, legale e fiscale prima, durante e dopo l'acquisto.

Caratteristiche

Piano 1
Ascensore No
Stato Nuovo / In costruzione
Riscaldamento Autonomo, a pavimento, alimentazione elettrica

Servizi e accessori

Cancello elettrico Impianto di allarme Impianto tv con parabola satellitare Infissi esterni in doppio vetro / PVC Mansarda Porta blindata VideoCitofono

Posizione

Referente

Agenzia Ritmo----------- Cervia: 0544.975231 Santarcangelo: 0541.786934 P.Marina: 0544.438067

Storico

Pubblicato 12 Jan 2026
Aggiornato 18 Feb 2026
Sul mercato 39 giorni
ID Annuncio 106135845

Recensioni

Vedi tutte
F

Francesco Ferro

5.0

Rispetto alle precedenti esperienze, questa volta ho trovato un servizio davvero impeccabile che ha reso tutto facile e senza stress. L’efficienza nella gestione della burocrazia e la puntualità negli...

N

Nicola Litrico

5.0

Una cosa che mi ha colpito subito è stata la chiarezza con cui hanno spiegato ogni fase della vendita, rendendo tutto molto semplice e trasparente. Sono stato davvero soddisfatto del percorso, sempre...

M

Marcello Pastore

5.0

Il fatto che siano riusciti a trovarmi un acquirente in tempi così rapidi mi ha davvero colpito. Mi sono sentito ascoltato e supportato in ogni fase, grazie alla loro serietà e professionalità. Sono s...

M

Maurizio Zampieri

4.3

Di solito le agenzie immobiliari mi avevano lasciato un po’ sconcertato, ma questa volta è stata tutta un’altra storia. Mi hanno seguito con tanta pazienza e cortesia, ascoltando davvero cosa cercavo...

T

Tommaso Massa

4.3

Un sentito grazie all'agenzia per avermi seguito con attenzione e professionalità. Ho trovato tutta la documentazione molto precisa e trasparente, il che ha reso il processo di vendita molto più tranq...