Indietro
Vendita Rustico - Casale

Rustico - Casale

Via Bonaventura da Peraga, Vigonza, Padova

Prezzo
Ottimo Affare: 70% sotto la media
368
mq
5+
Locali
3
Camere
2
Bagni

Recensisci questo Immobile

Devi essere registrato per lasciare una recensione.

Accedi

Nessuna recensione ancora. Sii il primo!

Descrizione

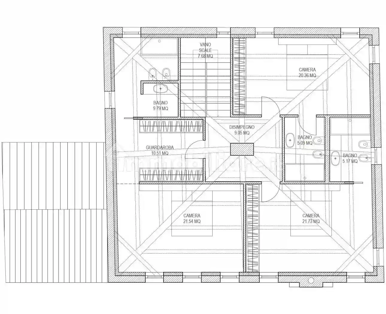
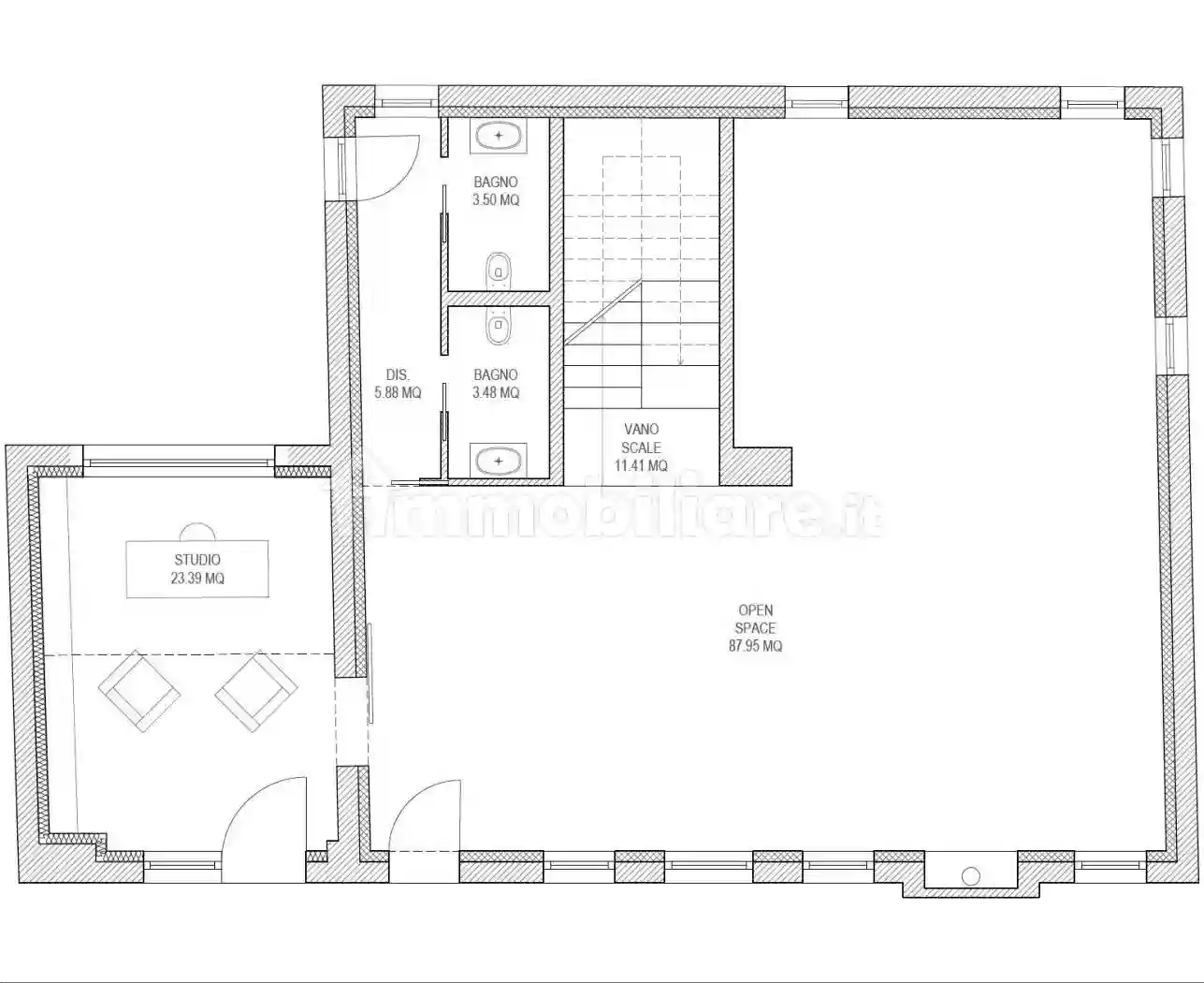
VIGONZA: frazione di PERAGA, proponiamo villa singola / rustico da ristrutturare.
La casa sorge in posizione ottimale per gli spostamenti da e verso la città o il veneziano, non troppo distante dall’accesso della tangenziale e concilia bene le comodità cittadine con il verde della zona. Possibilità di ricavare sia uffici sia una soluzione ad uso residenziale. Lotto di circa 1000mq e con 800mc sviluppabili.
Le planimetrie allegate sono solo delle idee per ultimare l’immobile.

PER ULTERIORI INFORMAZIONI SULL'IMMOBILE CI INVII IL SUO RECAPITO TELEFONICO E LA CONTATTEREMO PER TUTTI I DETTAGLI.

Il puntatore nella mappa per motivi di privacy non indica la posizione precisa dell'immobile, bensì una posizione fittizia nelle vicinanze.

Rif.: P-245
C.E.: assenza di impianti funzionanti
Prezzo Euro 210.000/00

Arte Di Abitare Filiale di Noventa Padovana
Telefono 049/7335223. o 3479391138
noventa@artediabitare.it

N.B. per motivi di privacy, l'indirizzo e il puntatore nella mappa sono puramente indicativi
e non corrispondono esattamente all'ubicazione dell'immobile.
Contattaci per avere maggiori informazioni sull'immobile.
Zone limitrofe: Villatora, Vigonovo, Stra, Vigonza, Noventa Padovana, Ponte di brenta, Camin, Padova, Dolo, Fiesso D'Artico, Fossò, Ponte San Nicolò, Roncaglia, Rio, Legnaro, Celeseo, Piove di Sacco, Camponogara.

Caratteristiche

Piano T
Ascensore No
Stato Da ristrutturare

Servizi e accessori

Esposizione esterna Impianto tv singolo Infissi esterni in vetro / legno

Posizione

Referente

L'Arte di Abitare - Agenzia di Perarolo di Vigonza

Storico

Pubblicato 14 Jan 2026
Aggiornato 26 Feb 2026
Sul mercato 43 giorni
ID Annuncio 106188651