Vendita Appartamento

Appartamento

Via dei Ciliegi, , Pontedera, Pisa

228.000 €
78
mq
3
Locali
2
Camere
1
Bagni

Recensisci questo Immobile

Devi essere registrato per lasciare una recensione.

Accedi

Nessuna recensione ancora. Sii il primo!

Descrizione

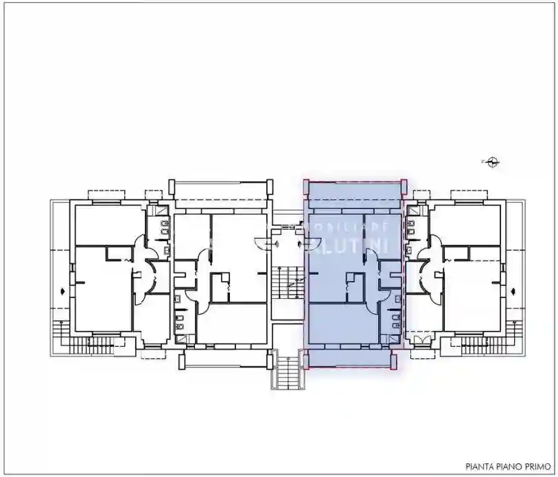
La Borra - Pontedera - Vendesi appartamento posto al primo piano di un piccolo edificio condominiale di nuova costruzione. L'immobile si compone in: ingresso in ampia zona giorno in open space con terrazzo abitabile; disimpegno, camera matrimoniale con secondo terrazzo, cameretta, bagno e ampio ripostiglio. Completa la proprietà il garage esclusivo di mq 15. DOTAZIONI: cappotto termico, Impianto di riscaldamento a pavimento centralizzato a gestione autonoma con impianto solare termico e impianto di addolcitore, predisposizione allarme e condizionatore. Classe energetica: A1 - Rif. 1691-AL

Caratteristiche

Ascensore No
Stato Nuovo / In costruzione
Riscaldamento Autonomo, a pavimento, alimentato a metano

Servizi e accessori

Impianto di allarme Porta blindata VideoCitofono

Posizione

Agenzia Immobiliare Andrea Salutini

Agenzia

Referente

Agenzia Immobiliare Andrea Salutini

Storico

Pubblicato 14 Jan 2026
Aggiornato 26 Feb 2026
Sul mercato 43 giorni
ID Annuncio 106887729