Villa
Vendita
Vendita Villa Luxury

Villa

Via Sant'andrea, 1200, Forlimpopoli, Forli Cesena

510.000 €
150
mq
3
Locali
2
Camere
2
Bagni

Recensisci questo Immobile

Devi essere registrato per lasciare una recensione.

Accedi

Nessuna recensione ancora. Sii il primo!

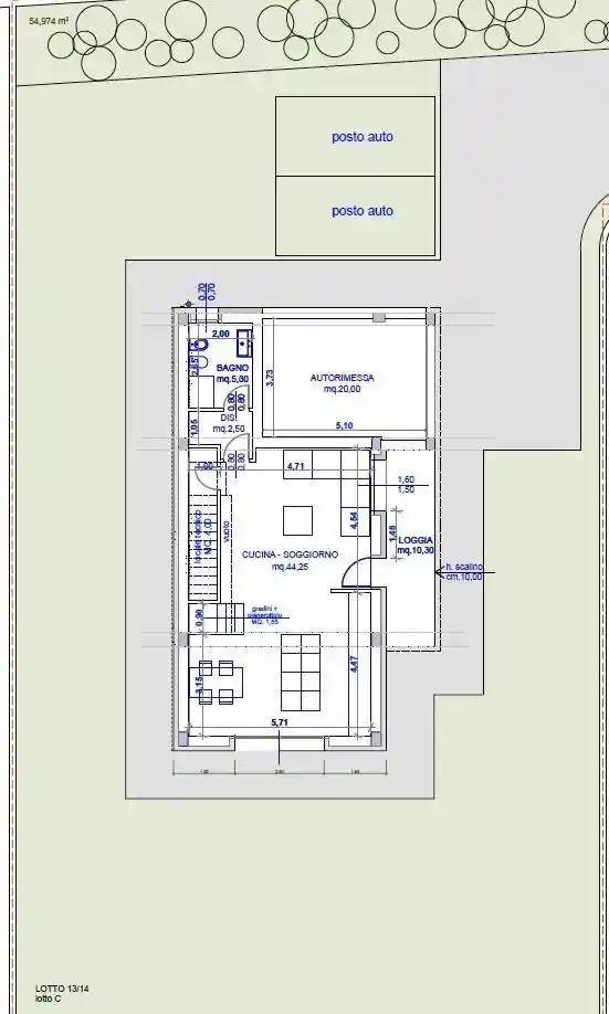
Descrizione

VILLA INDIPENDENTE

Villa indipendente con ampia corte che circonda la casa donando privacy e pace.

Al piano terra ingresso su ampio open-space con vetrate panoramiche sulla corte
e comodo bagno.

Al piano superiore troviamo 3 camere da letto di cui una matrimoniale con cabina armadio,
una singola e una doppia.
Sempre al piano superiore bagno con box doccia.

Possibilità di applicare modifiche in base al proprio bisogno.

Ogni soluzione dispone di pannelli fotovoltaici e sistema meccanizzato
di riscaldamento e raffrescamento.

Massime prestazioni energetiche con pochi consumi.

Possibilità di opzionare i lotti adiacenti al parco.

La possibilità di vivere immersi nella natura del futuro.

Caratteristiche

Ascensore No
Stato Nuovo / In costruzione
Riscaldamento Autonomo, a pavimento, alimentato a fotovoltaico

Servizi e accessori

Cancello elettrico Esposizione esterna Impianto tv singolo Infissi esterni in triplo vetro / metallo VideoCitofono

Posizione

Referente

RomagnaCase - Forlimpopoli

Storico

Pubblicato 12 Jan 2026
Aggiornato 18 Feb 2026
Sul mercato 39 giorni
ID Annuncio 107282717

Recensioni

Vedi tutte
G

Gennaro Pagani

4.0

Dopo averne provate di agenzie, questa si è distinta per attenzione alle mie esigenze e affidabilità. Avevo bisogno di un appartamento vista mare e mi hanno seguito passo passo, trovando la soluzione...