Vendita Villa Luxury

Villa

Castellarano, Reggio Emilia

Prezzo su richiesta
370
mq
5+
Locali
5
Camere
3+
Bagni

Recensisci questo Immobile

Devi essere registrato per lasciare una recensione.

Accedi

Nessuna recensione ancora. Sii il primo!

Descrizione

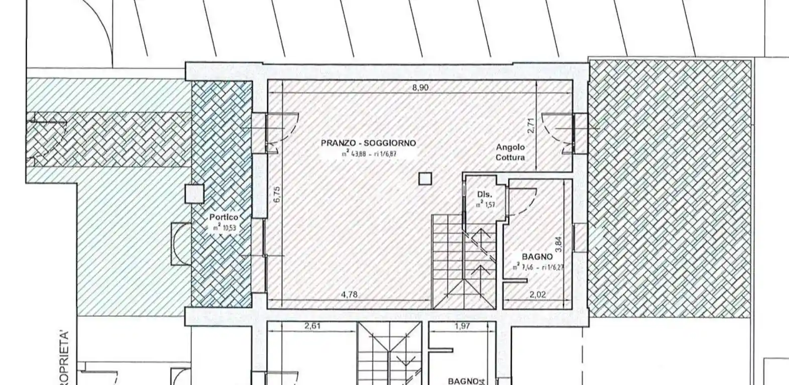
Propongo in vendita villa sita in zona centrale a Castellarano, composto da 2/3 unità immobiliari con accesso indipendente l'una dall'altra. Immobile libero su 4 lati, locato su lotto di circa 900mq, con ampio accesso per le auto e giardino di pertinenza all'unità.

Immobile principale si trova al PT, composto da ingresso su ampio soggiorno con accesso al terrazzo e giardino esterno, cucina abitabile, 3 camere e 2 bagni.

L'appartamento al P1 con accesso indipendente è composto da ingresso su soggiorno , angolo cottura, balcone, 2 camere, bagno, lavanderia e ripostiglio.

In ultimo rimane l'appartamento al Piano seminterrato, anche questo con angolo di giardino, 2 camere, soggiorno con angolo cottura e bagno.

Giardino di pertinenza all'unità con accesso a due ampi garage, cantine e ripostigli.

Richiesta: INFO IN UFFICIO

Caratteristiche

Piano T
Ascensore No
Stato Buono / Abitabile
Riscaldamento Autonomo, a radiatori, alimentato a gas

Servizi e accessori

Armadio a muro Caminetto Cancello elettrico Esposizione esterna Fibra ottica Idromassaggio Impianto di allarme Impianto tv singolo Infissi esterni in doppio vetro / legno Mansarda Porta blindata VideoCitofono

Referente

Living Soluzioni Immobiliari

Storico

Pubblicato 12 Jan 2026
Aggiornato 24 Feb 2026
Sul mercato 43 giorni
ID Annuncio 107374935

Recensioni

Vedi tutte
P

Piero De Santis

4.7

Durante il processo mi sono sentito subito messo a mio agio grazie alla professionalità dell'agente. Ho trovato facilmente l'appartamento che cercavo, grazie al suo aiuto e alla sua disponibilità. L'a...