Vendita Villa Luxury

Villa

Strada Vicinale Guardia Grande, Alghero, Sassari

1.500.000 €
300
mq
5+
Locali
8
Camere
3+
Bagni

Recensisci questo Immobile

Devi essere registrato per lasciare una recensione.

Accedi

Nessuna recensione ancora. Sii il primo!

Descrizione

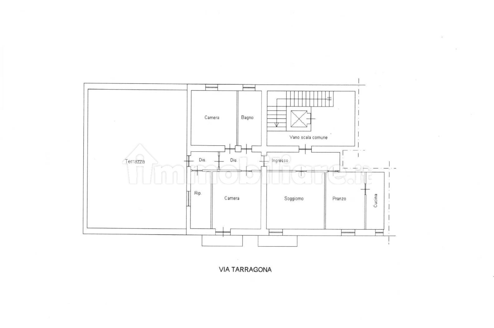
Alghero, Guardia Grande, l’Immobiliare Nord Ovest propone un interessante ed elegante complesso residenziale sulla strada provinciale 55 Bis per Capo Caccia, vicino alle spiagge di Porto Ferro, Porticciolo e Mugoni. Il residence è composto da quattro unità sparse in un terreno di circa 7000 mq. La prima, Villa Antonio è composta da due appartamenti separati, uno per 9 e uno per 7 persone, dotati entrambi di doppi bagni, cucina pranzo e tutti i servizi (smart tv, citofonia, wifi, pompe di calore… La seconda unità, Villa Andrea, ha un viale d’ingresso indipendente ed è composta da camera da letto matrimoniale, cucina, bagno e due piacevoli verande. Le altre due unità sono entrambe dei bilocali. Tutte le unità sono dotate di cappotto termico, pompe di calore, caldaie a gas, doppi vetri, elettrodomestici e tutti gli accessori. Rifiniture eleganti e di pregio. Esterno con ampio prato inglese e piante. Due piscine di cui la principale è di 11x5 mt e con illuminazione notturna. Due vasche interrate con 10mila litri d’acqua e pozzo, impianto di irrigazione automatizzato, Ogni appartamento è dotato di barbecue e illuminazione solare. Cancelli elettrici. Accensione automatica di lampioni e faretti. Parcheggio coperto. Tutti i dispositivi elettrici vengono comandati manualmente e in domotica. L’intera area e videosorvegliata da telecamere a 360° con sensori di movimento. Le unità abitative vengono vendute completamente arredate come da foto. Interessante investimento commerciale, ma anche una possibile scelta di vita per chi ama questo angolo di Sardegna vicino ad Alghero, all'aeroporto ed al mare. Prezzo trattabile.

Caratteristiche

Piano T
Stato Ottimo / Ristrutturato
Riscaldamento Autonomo

Servizi e accessori

Cancello elettrico Impianto di allarme Impianto tv con parabola satellitare Infissi esterni in triplo vetro / PVC Piscina Porta blindata VideoCitofono

Posizione

Referente

AGENZIA NORD OVEST di Alghero

Storico

Pubblicato 14 Jan 2026
Aggiornato 23 Feb 2026
Sul mercato 41 giorni
ID Annuncio 107377829

Recensioni

Vedi tutte
S

Serena Marchetti

5.0

Stavo cercando la mia prima casa ad Alghero e grazie all’agenzia ho trovato perfettamente quello che desideravo. Sono stata seguita con grande attenzione e professionalità, e le risposte sono sempre s...

C

Cinzia Crispo

4.7

Durante il processo mi sono sentita ascoltata e supportata, grazie alla loro pazienza e rapidità nel rispondere a tutte le mie domande. Sono stata seguita passo passo nella ricerca dell’appartamento v...

L

Laura Lazzari

4.7

Quel panorama mozzafiato sul mare mi ha subito conquistata, e l’agenzia è stata davvero fantastica nel seguirmi passo passo. La loro competenza e affidabilità hanno reso tutto più semplice, grazie anc...

E

Emma Caputo

4.7

Ricordo ancora il momento in cui ho trovato la casa giusta grazie alla loro cortesia e professionalità. Mi sono sentita seguita e aiutata in ogni fase, dalle visite alla chiusura della vendita, con gr...