Vendita Appartamento

Appartamento

Bellaria-Igea Marina, Rimini

Prezzo
90
mq
3
Locali
2
Camere
2
Bagni

Recensisci questo Immobile

Devi essere registrato per lasciare una recensione.

Accedi

Nessuna recensione ancora. Sii il primo!

Descrizione

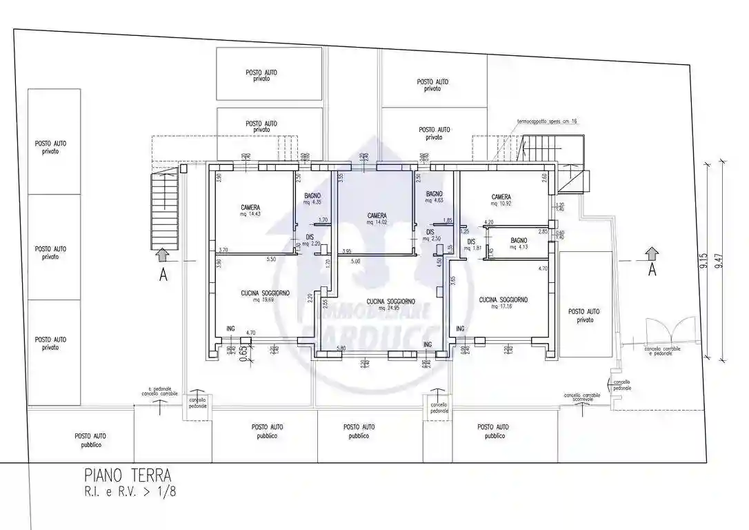
Bellaria centro, a soli 700 mt dalla spiaggia e 300 mt dall’isola pedonale, nuovo appartamento disposto su due livelli, classe A++++

Da scala in comune ad un altra unità accediamo a balcone di proprietà, ingresso su soggiorno/pranzo con angolo cottura, disimpegno e bagno.
Al piano superiore, reparto notte composto da disimpegno, secondo bagno, due camere matrimoniali servite da balcone.
Completa la proprietà al piano terra un posto auto di proprietà, disponibile da subito.

Isolamenti acustici e termici, riscaldamento a pavimento, aria condizionata, pannelli solari. Finiture di qualità e di ultime generazioni.

Indirizzo puramente indicativo di zona

Caratteristiche

Piano T
Ascensore No
Stato Nuovo / In costruzione
Riscaldamento Autonomo, a pavimento

Servizi e accessori

Porta blindata

Posizione

Referente

Agenzia Immobiliare Barducci Di Linda Bandieri

Storico

Pubblicato 19 Apr 2026
Disattivato 22 Apr 2026
Sul mercato 11 giorni
ID Annuncio 107722341