Indietro
Vendita Palazzo - Edificio

Palazzo - Edificio in Vendita

Via Federico d'Aragona, 92, Lavello, Potenza

Prezzo
210
mq
3
Bagni

Recensisci questo Immobile

Devi essere registrato per lasciare una recensione.

Accedi

Nessuna recensione ancora. Sii il primo!

Descrizione

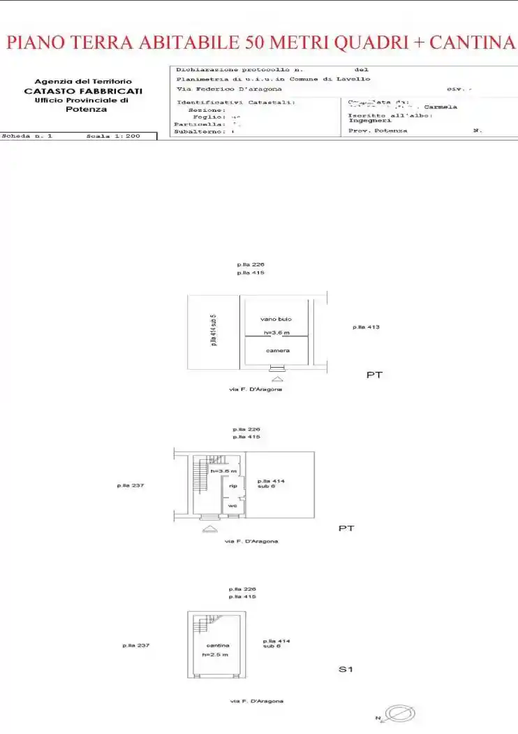
VENDESI a Lavello in Via Federico D'Aragona 92/92a (Zona Sant'Anna) palazzo indipendente costruzione anni 80/90 disposto su 3 livelli di cui il pian terreno è dotato anche di ingresso separato, nello specifico composto da:

PIAN TERRENO ABITABILE: cucina, camera da letto, bagno, ripostiglio, cantina e vano scale condiviso con i piani superiori. Metratura completa, compreso cantina S1, circa 60 metri quadrati.

PRIMO PIANO ABITABILE CLIMATIZZATO: Composto da soggiorno/cucina open space, camera da letto, cameretta, bagno con anticamera e ripostiglio. Inoltre il soggiorno, il bagno e la camera da letto sono dotati di un ampio balcone intero comunicante avente come lunghezza circa 10 metri.
Il Primo Piano complessivamente, al netto del balcone, misura circa 65 metri quadrati;

SECONDO PIANO DA RIFINIRE: Composto da sottotetto alto da poter rendere perfettamente abitabile, ampia zona giorno pavimentata con caminetto, bagnetto provvisorio e terrazza esterna coperta per conviviali e informali momenti in allegria. Metratura complessiva tra aree coperte e scoperte circa 70 metri quadrati.

Caratteristiche

Piano Piano rialzato
Garage 1 in parcheggio/garage comune

Servizi e accessori

Esposizione esterna Balcone

Posizione

Agenzia Immobiliare

Storico

Pubblicato 11 Jan 2026
Disattivato 04 Mar 2026
Sul mercato 84 giorni
ID Annuncio 109797281