Vendita Villa

Villa

Via Torino, 1, Candiolo, Torino

500.000 €
Ottimo Affare: 49% sotto la media
600
mq
5+
Locali
20
Camere
3+
Bagni

Recensisci questo Immobile

Devi essere registrato per lasciare una recensione.

Accedi

Nessuna recensione ancora. Sii il primo!

Descrizione

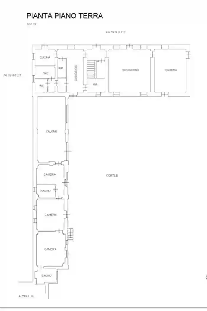
Nella prima cintura Sud di Torino, meraviglioso casale indipendente immerso nel verde con vista sul Monviso.
Attualmente sono presenti due alloggi ristrutturati di 100 m2 caduno, ognuno con accesso indipendente, e altre varie unità trasformabili in più appartamenti.
La parte ristrutturata possiede serramenti nuovi, vespai, pompe di calore e palchetti in tutta la casa.
Completano l'unità ampi giardini privati, alberi da frutta, tettoie per ricovero auto.
E' presente una piscina di 60 m2 in acqua salata.
La casa è full electric, domotica e possiede pompe di calore e wall box alimentate da pannelli solari.
Trattativa riservata tra privati.
Astenersi agenzie o intermediari

Caratteristiche

Piano T
Stato Ottimo / Ristrutturato
Riscaldamento Autonomo

Servizi e accessori

Bagno per disabili Cucina Esposizione sud Infissi esterni in doppio vetro / legno Piscina

Agenzia Immobiliare

Storico

Pubblicato 13 Jan 2026
Aggiornato 25 Feb 2026
Sul mercato 42 giorni
ID Annuncio 110056561