Vendita Appartamento

Appartamento

Corso Amedeo Duca d'Aosta, 43, Catania, Catania

125.000 €
110
mq
4
Locali
3
Camere
1
Bagni

Recensisci questo Immobile

Devi essere registrato per lasciare una recensione.

Accedi

Nessuna recensione ancora. Sii il primo!

Descrizione

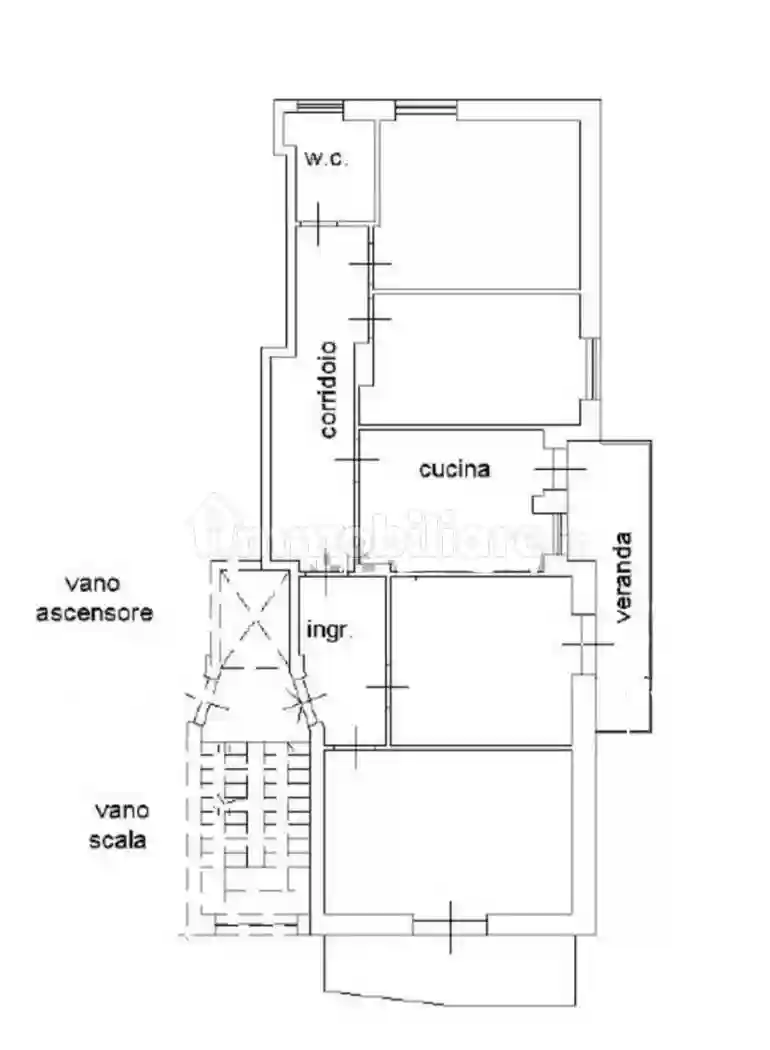
L' appartamento con una superficie di circa 130 mq., posto al terzo piano ascensorato.
Ha un ingresso ampio e accogliente. Ha una cucina abitabile che affaccia su un balcone ampio. Ha tre camere da letto e un soggiorno spazioso e luminoso.
Le tre camere da letto entrambe spaziose e luminose. La casa si presta ha modifiche per creare una zona living cucina e soggiorno.

Caratteristiche

Piano 3
Stato Buono / Abitabile

Servizi e accessori

Cucina Esposizione nord, sud, ovest Infissi esterni in doppio vetro / metallo

Posizione

Zona: Rapisardi (Rapisardi, Ballo, Cibele)

Agenzia Immobiliare

Storico

Pubblicato 21 Jan 2026
Aggiornato 25 Feb 2026
Sul mercato 36 giorni
ID Annuncio 110095429