Vendita Palazzo - Edificio

Palazzo - Edificio

Via Giardini Sud, 104, Pavullo nel Frignano, Modena

250.000 €
Ottimo Affare: 61% sotto la media
525
mq
5+
Locali
3+
Bagni

Recensisci questo Immobile

Devi essere registrato per lasciare una recensione.

Accedi

Nessuna recensione ancora. Sii il primo!

Descrizione

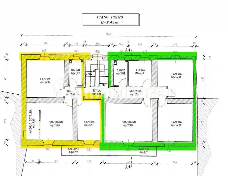
Pavullo N/F (MO) In zona comoda alla viabilità proponiamo palazzina libera da terra a cielo composta da 6 appartamenti di diverse dimensioni. Al piano 3° vi sono le soffitte di pertinenza.LA palazzina ha sul retro un lotto di terreno edificabile 400mq attualmente utilizzato come giardino e/o posti auto
Il tutto da restaurare con già depositata la CILA S per aderire eventualmente ai superbonus
ideale come investimento per mettere a reddito gli alloggi

Caratteristiche

Servizi e accessori

Accesso per disabili Balcone Esposizione esterna Infissi esterni in vetro / legno

Posizione

Referente

TemaCasa

Storico

Pubblicato 12 Jan 2026
Aggiornato 24 Feb 2026
Sul mercato 45 giorni
ID Annuncio 110450129

Recensioni

Vedi tutte
E

Emanuele Avallone

5.0

Ho scelto questa agenzia perché cercavo un servizio trasparente e onesto, che mi guidasse con professionalità nel mio cambio casa. Sono stato molto colpito dal modo in cui hanno seguito ogni fase dell...

F

Fabio Godano

5.0

Ho trovato un’agenzia immobiliare davvero affidabile e trasparente a Pavullo nel Frignano. Sono stato molto soddisfatto del supporto che mi hanno dato nel trovare l’appartamento perfetto per i miei fi...

G

Gerardo Laurenti

4.7

Ho venduto la casa in breve tempo grazie alla serietà e alla professionalità dell'agenzia. Mi sono trovato molto bene, hanno seguito ogni passo con cortesia e trasparenza, aiutandomi a gestire un peri...

G

Giuseppe Guglielmi

4.3

Ho scelto questa agenzia perché cercavo qualcuno che ascoltasse davvero le mie esigenze e avesse pazienza, e così è stato. Mi hanno seguito passo passo durante la vendita del mio locale commerciale, a...