Vendita Palazzo - Edificio

Palazzo - Edificio

Cesano Maderno, Monza e Brianza

1.100.000 €
Ottimo Affare: 32% sotto la media
2360
mq

Recensisci questo Immobile

Devi essere registrato per lasciare una recensione.

Accedi

Nessuna recensione ancora. Sii il primo!

Descrizione

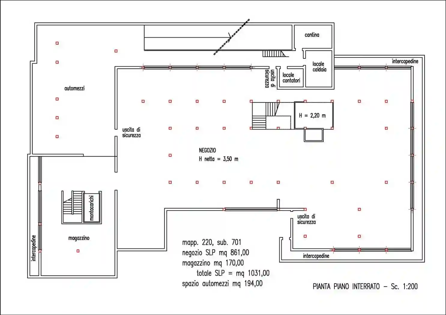
Immobile commerciale, con ampie vetrine esposizione, composto da: Piano Terra Negozio di mq. 548 più carico scarico mq. 59. Piano Interrato Negozio mq. 861 Magazzino mq. 170 e spazio automezzi mq. 194. Piano Primo Appartamenti di mq. 91 più mq. 81 più mq. 151. Piano Secondo Appartamento di mq. 85 con terrazzo di mq. 122

Caratteristiche

Piano 1

Servizi e accessori

Accesso per disabili Esposizione esterna

Posizione

Referente

Treesse Studio Immobiliare di Sassi Giovanni

Storico

Pubblicato 13 Jan 2026
Aggiornato 24 Feb 2026
Sul mercato 42 giorni
ID Annuncio 110631875

Recensioni

Vedi tutte
L

Liliana Savini

5.0

Ho trovato un appartamento perfetto per i miei figli universitari grazie a un'agenzia seria e professionale. Mi è stata seguita passo dopo passo, con molta cura dei dettagli, e sono molto soddisfatta...

P

Patrizia Amato

4.7

Ricordo ancora quando ho trovato l’appartamento perfetto per la mia famiglia in crescita, grazie alla loro assistenza impeccabile. Sono stata molto colpita dalla precisione nella gestione della docume...

L

Lisa Avallone

4.7

Le esperienze con altre agenzie erano state spesso confusionarie e impersonali, ma questa volta è stato tutto diverso. Mi sono sentita seguita con tanta professionalità e attenzione durante l'accompag...