Appartamento
Vendita
Vendita Appartamento Luxury

Appartamento

VIA DEL PINO, Calenzano, Firenze

470.000 €
107
mq
4
Locali
3
Camere
2
Bagni

Recensisci questo Immobile

Devi essere registrato per lasciare una recensione.

Accedi

Nessuna recensione ancora. Sii il primo!

Descrizione

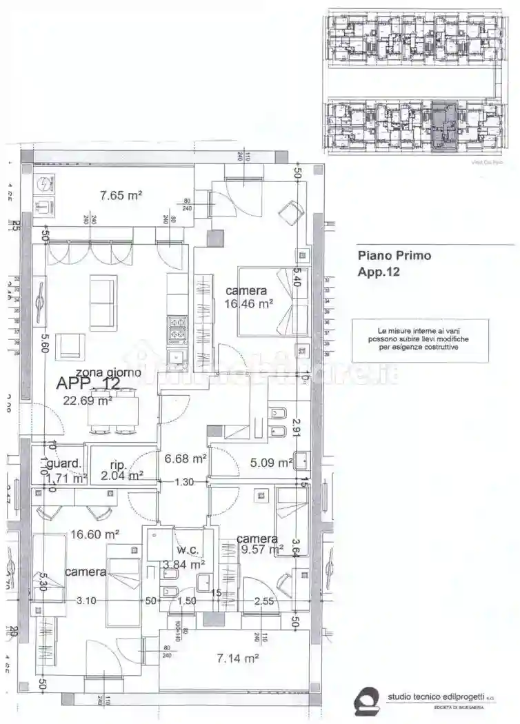
calenzano in zona centrale, quindi vicino a tutti i servizi, proponiamo in vendita un bell' appartamento in fase di realizzazione cosi' composto: ingresso su soggiorno con zona cottura, disimpegno, due camere matrimoniali, 1 camera singola, ripostiglio, guardaroba, e doppi servizi di cui uni finestrato. inoltre due loggie, cantina e posto auto coperto al piano seminterrato. l'immobile verra' dotato di impianto di riscaldamento a pavimento (con teleriscaldamento), impianto di aria condizionata con split e predisposizione domotica. il capitolato prevede rifiniture di pregio con possibilita' di personalizzazione.
possibilita' di sisma bomus (info in agenzia)
classe energetica a2.
richiesta euro 470.000- rif. a440

Caratteristiche

Piano 1
Ascensore Si
Stato Nuovo / In costruzione
Riscaldamento Autonomo

Servizi e accessori

Esposizione esterna

Posizione

Referente

Immobiliare Giusti

Storico

Pubblicato 14 Jan 2026
Aggiornato 18 Feb 2026
Sul mercato 36 giorni
ID Annuncio 110702359

Recensioni

Vedi tutte
V

Valerio Pagano

4.3

Mi ha colpito subito la trasparenza con cui mi hanno seguito durante tutto il processo d'acquisto. L'attenzione ai dettagli e la disponibilità sono stati fondamentali per trovare la casa perfetta per...

M

Mario Ferraro

4.3

Ricordo ancora il momento in cui ho visto l’appartamento con vista mare e ho capito subito che era quello giusto. Durante tutta la trattativa, sono stato seguito da professionisti affidabili che hanno...

G

Gianmarco Lorenzi

4.7

Dopo aver passato anni in affitto, questa agenzia immobiliare è stata una vera boccata d’aria fresca: mi ha seguito passo dopo passo, rendendo tutto molto più semplice e meno stressante. Hanno aiutato...

C

Cristian Lombardi

4.7

Ho trovato l’ufficio perfetto per la mia attività grazie a un servizio davvero professionale e attento alle mie esigenze. L’agenzia si è mostrata sempre chiara e disponibile, guidandomi con pazienza e...