Indietro
Vendita Casa indipendente

Casa indipendente

Brandizzo, Torino

59.000 €
Ottimo Affare: 27% sotto la media
60
mq
3
Locali
2
Camere
1
Bagni

Recensisci questo Immobile

Devi essere registrato per lasciare una recensione.

Accedi

Nessuna recensione ancora. Sii il primo!

Descrizione

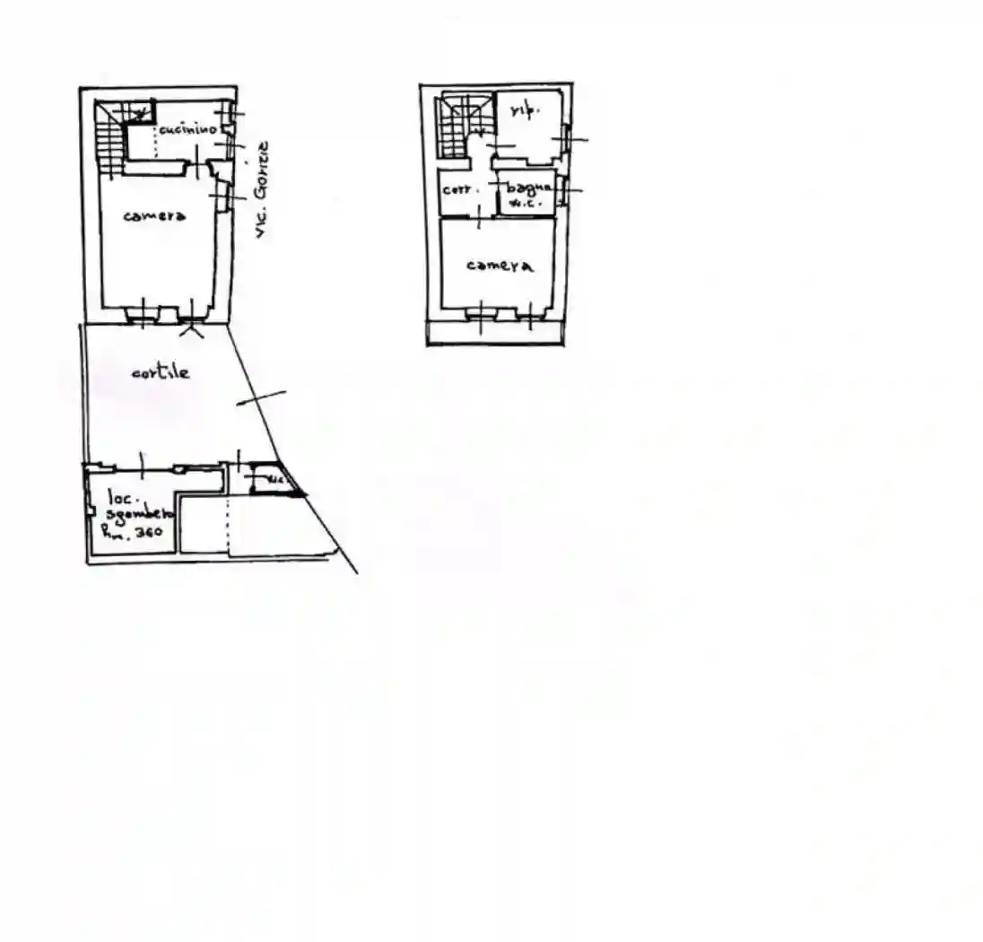
In una tranquilla zona residenziale, proponiamo una soluzione abitativa indipendente, ideale per chi è alla ricerca di privacy e comfort, senza il peso delle spese condominiali. Questa accogliente casa si dispone su due livelli, offrendo una composizione interna ben pensata per ottimizzare gli spazi e garantire la massima vivibilità . Al piano terra, l'ingresso si apre su un luminoso soggiorno, perfetto per i momenti di relax in famiglia o con gli amici. Adiacente, troverete un funzionale cucinotto, ideale per preparare deliziosi pasti in un ambiente intimo e accogliente. Attraverso una comoda scala interna si accede al piano superiore, dove un corridoio conduce alla zona notte. Qui si trova una spaziosa camera da letto, un bagno e una cameretta. La proprietà include un cortile privato di 30 mq, uno spazio all'aperto da godere nelle belle giornate, ideale per cene all'aperto o semplicemente per rilassarsi. Inoltre, è presente un locale sgombero, versatile per qualsiasi esigenza, oltre a un box auto .L'immobile è attualmente locato, garantendo un reddito immediato di € 450,00 mensili. Questa caratteristica lo rende un'ottima opportunità sia per investitori che cercano una proprietà già a reddito, sia per chi prevede un trasferimento futuro e desidera nel frattempo un introito.Non perdete l'occasione di visitare questa soluzione unica, dove comfort, indipendenza e convenienza si fondono in un'offerta immobiliare imperdibile. Contattateci per maggiori informazioni o per organizzare una visita.
Tre motivi per acquistare questo immobile:
1. RISCALDAMENTO AUTONOMO
2. INDIPENDENTE
3. SPAZIO ESTERNO Per avere ulteriori informazioni o per fissare un appuntamento può chiamarci al numero 011.9178507, mandarci un sms al nostro numero whatsapp 327-1232575 o passare a trovarci in Via Torino, 256 a Brandizzo. Se fosse interessato ad una valutazione gratuita e senza impegno del suo immobile, siamo a sua completa disposizione! Le ricordiamo, inoltre, che la nostra struttura offre consulenze di mutuo gratuite con tassi agevolati!

Caratteristiche

Ascensore No
Stato Buono / Abitabile
Riscaldamento Autonomo, a stufa

Servizi e accessori

Esposizione doppia Impianto tv singolo Infissi esterni in vetro / legno

Referente

TEMPOCASA Brandizzo

Storico

Pubblicato 13 Jan 2026
Aggiornato 25 Feb 2026
Sul mercato 44 giorni
ID Annuncio 110782953

Recensioni

Vedi tutte
A

Angelo Granata

4.7

Grazie di cuore per avermi seguito in questa avventura; sono davvero grato per la professionalità e la chiarezza con cui avete spiegato ogni dettaglio. Ho trovato la casa al mare che cercavo con facil...

M

Mauro Andreoli

4.7

Durante tutto il processo mi sono sentito davvero tranquillo, grazie alla cortesia e all’efficienza dello staff che ha gestito ogni aspetto con grande professionalità. Dopo anni di affitti, ho trovato...

G

Gabriele Ferro

4.0

Ricordo quando ho trovato l’appartamento con vista mare a pochi giorni dalla mia prima visita, grazie alla rapidità e all’attenzione che mi hanno dedicato. Sono stato molto colpito dalla capacità di a...