Appartamento
Vendita
Vendita Appartamento

Appartamento

Via DAMONE, Siracusa, Siracusa

150.000 €
178
mq
5+
Locali
3
Camere
2
Bagni

Recensisci questo Immobile

Devi essere registrato per lasciare una recensione.

Accedi

Nessuna recensione ancora. Sii il primo!

Descrizione

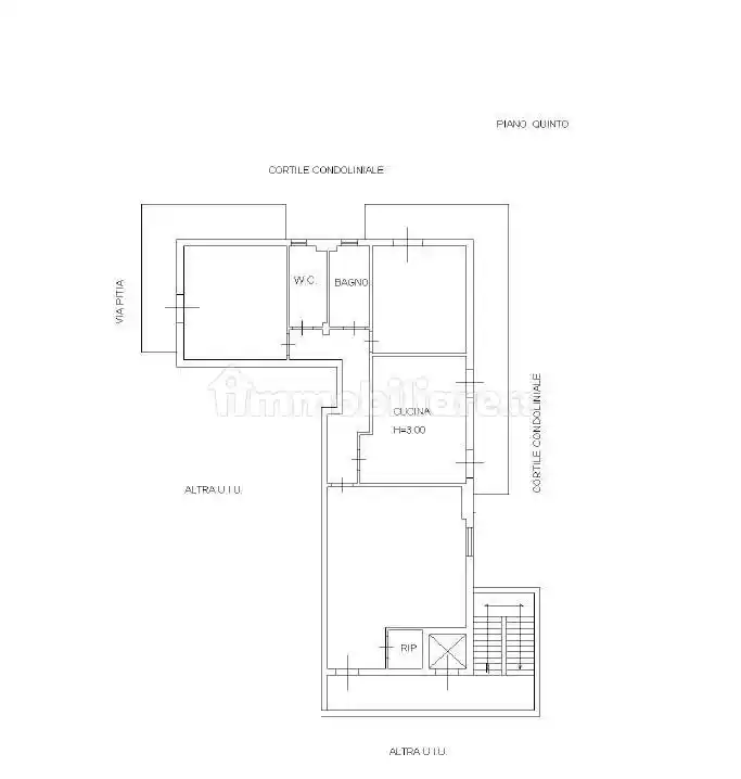
Scopri questo spazioso appartamento di 170 mq, situato al secondo piano di un edificio con ascensore. La doppia esposizione garantisce luminosità e ventilazione naturale, affacciandosi su una strada poco trafficata.
L'immobile, da ristrutturare, offre un progetto già predisposto da un interior designer per rimodulare gli ambienti interni a tuo piacimento. Con un prospetto già consegnato e ristrutturato grazie all'intervento di Ecobonus con cappotto termico, potrai personalizzare gli interni secondo i tuoi gusti.
Composto da ingresso, cucina abitabile, salone, soggiorno, tre camere da letto, due bagni, lavanderia e ripostiglio, l'appartamento dispone anche di veranda e balcone. I posti auto interni recintati aggiungono ulteriore comodità.
Prezzo richiesto: 150.000 euro trattabili.
Non perdere questa occasione unica! Contattaci per maggiori informazioni e per fissare una visita.
Codice di riferimento D891sr

Caratteristiche

Piano 2
Ascensore Si
Stato Da ristrutturare

Servizi e accessori

Esposizione doppia Impianto tv singolo Infissi esterni in doppio vetro / PVC Porta blindata

Posizione

Zona: Tica - Zecchino (Tica, Zecchino, Bosco Minniti, Santa Panagia)

Referente

RETECASA - Agenzia di Siracusa

Storico

Pubblicato 14 Jan 2026
Aggiornato 18 Feb 2026
Sul mercato 37 giorni
ID Annuncio 111627625

Recensioni

Vedi tutte
S

Silvana Lombardi

5.0

Durante tutto il processo mi sono sentita davvero tranquilla e sicura, grazie alla professionalità e onestà dell'agenzia. Mi ha aiutata a trovare il terreno giusto e a gestire tutte le pratiche burocr...

G

Gabriella Morandi

4.7

Appena arrivata a Siracusa e alla ricerca di un bilocale, sono stata colpita dalla chiarezza e onestà delle valutazioni fornite dall'agenzia. Mi sono sentita seguita con attenzione e professionalità,...

C

Carlotta De Angelis

4.7

Grazie di cuore per avermi aiutata a trovare la casa perfetta vicino ai miei genitori. Avevo bisogno di un’ampia scelta e l’agenzia mi ha seguito passo dopo passo, rendendo tutto molto semplice e senz...

F

Fabiana Guerrini

4.3

Ho scelto questa agenzia perché mi ha colpito la loro tempestività nelle risposte e la serenità che trasmettevano. Mi sono trovata subito seguita e aiutata con grande professionalità, cosa importante...

L

Laura Abate

4.3

Fin dal primo incontro, sono stata colpita dall’attenzione con cui mi hanno ascoltata, cogliendo subito le mie esigenze di avvicinarmi ai miei genitori anziani. Mi sono trovata seguita e aiutata passo...