Appartamento
Vendita
Vendita Appartamento

Appartamento

Riccione, Rimini

450.000 €
91
mq
3
Locali
2
Camere
2
Bagni

Recensisci questo Immobile

Devi essere registrato per lasciare una recensione.

Accedi

Nessuna recensione ancora. Sii il primo!

Descrizione

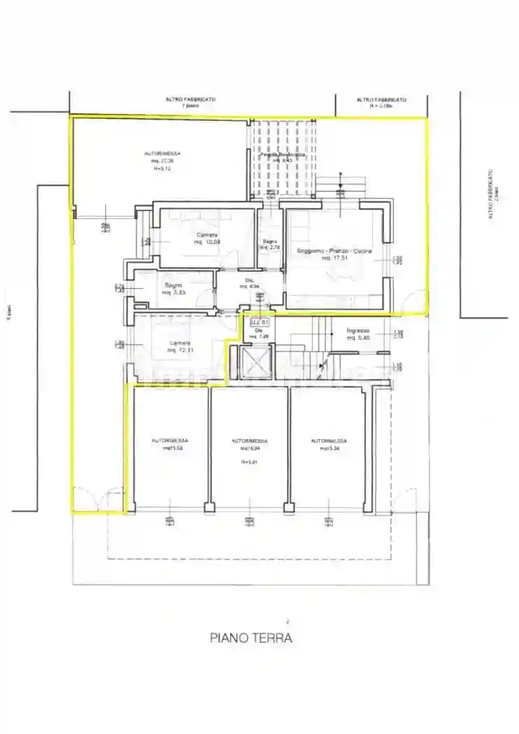
In piccola palazzina di 4 unità di prossima realizzazione, appartamento al piano terra di 66mq, scoperto esterno 67mq, p. auto 30mq e cantina 7mq commerciali 90mq. Impianti di ultima generazione no gas. N. 2 Camere, 2 Bagni, Soggiorno con cucina a vista. Consegna 2027...

Caratteristiche

Piano S
Ascensore Si
Stato Nuovo / In costruzione
Riscaldamento Autonomo, a pavimento, alimentato a pompa di calore

Servizi e accessori

Cancello elettrico Porta blindata VideoCitofono

Referente

Agenzia Immobiliare Labatericcione

Storico

Pubblicato 12 Jan 2026
Aggiornato 18 Feb 2026
Sul mercato 38 giorni
ID Annuncio 111675581

Recensioni

Vedi tutte
N

Noemi Moretti

4.3

Ho trovato un’agenzia molto disponibile e professionale, sempre pronta ad ascoltare e adattarsi alle mie esigenze. La loro flessibilità negli orari e la pazienza dimostrata mi hanno aiutato a sentirsi...

O

Olga Pace

5.0

Ricordo quando sono arrivata in agenzia e sono stata subito seguita con attenzione. La loro conoscenza del mercato di Riccione è fantastica e mi hanno mostrato un’ampia scelta di bilocali che risponde...