Vendita Appartamento

Appartamento

VIA MATTEO REPETTO, 26, Albissola Marina, Savona

Prezzo
55
mq
3
Locali
2
Camere
1
Bagni

Recensisci questo Immobile

Devi essere registrato per lasciare una recensione.

Accedi

Nessuna recensione ancora. Sii il primo!

Descrizione

VIA M. REPETTO - Albissola Marina (SV)
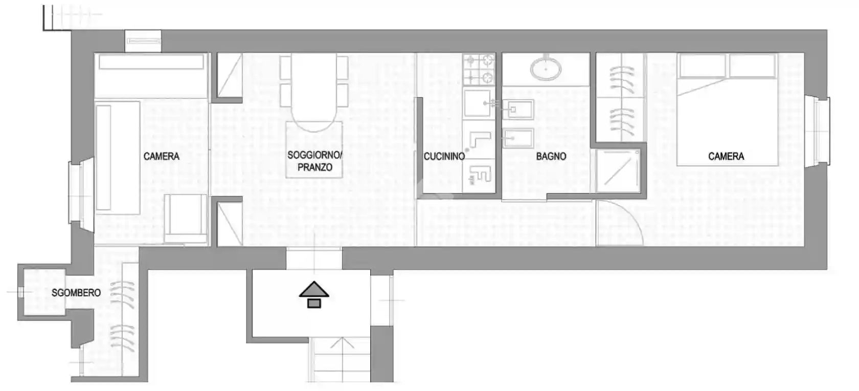
Nel centro storico di Albissola Marina , comodo a tutti i servizi ed a meno di 50 mt dalle spiagge , proponiamo in vendita Trilocale in ottimo stato ed arredato , posto al quarto ed ultimo piano .
L'immobile è composto da un ingresso in zona giorno in open-space , camera da letto matrimoniale , seconda cameretta di servizio con piccola cabina armadi e bagno.
Il riscaldamento è autonomo e le spese di gestione contenute .
Grazie alla sua esposizione risulta luminoso ed arieggiato.
Lo stabile risulta in ottime condizioni essendo stato ristrutturato esternamente nel 2023 .

Caratteristiche

Piano 3
Ascensore No
Stato Buono / Abitabile
Riscaldamento Autonomo, a radiatori

Posizione

Referente

Affiliato Tecnocasa: STUDIO ALBISOLA SAS

Storico

Pubblicato 12 Jan 2026
Aggiornato 30 May 2026
Sul mercato 138 giorni
ID Annuncio 111808663

Recensioni

Vedi tutte
R

Renzo Guerrini

4.7

Durante la visita al magazzino, ho apprezzato subito la tempestività nelle risposte e la cortesia del team. Sono stato molto soddisfatto dell’assistenza ricevuta, che mi ha aiutato a trovare rapidamen...