Indietro
Vendita Rustico - Casale

Rustico - Casale

Via Enrico Fermi, 8, Pistoia, Pistoia

Prezzo
Ottimo Affare: 47% sotto la media
160
mq
5+
Locali
4
Camere
3
Bagni

Recensisci questo Immobile

Devi essere registrato per lasciare una recensione.

Accedi

Nessuna recensione ancora. Sii il primo!

Descrizione

PISTOIA - Pressi zona industriale S. Agostino - Alle porte della città e quindi a pochi minuti dal centro.
Privato vende porzione di colonica libera su due lati di circa 130 mq disposti su 3 piani, completamente da ristrutturare.
Al piano terreno: ampio soggiorno con piccolo ripostiglio, cucina e bagno di servizio.
Al piano primo: due luminose camere matrimoniali ognuna con bagno privato associato.
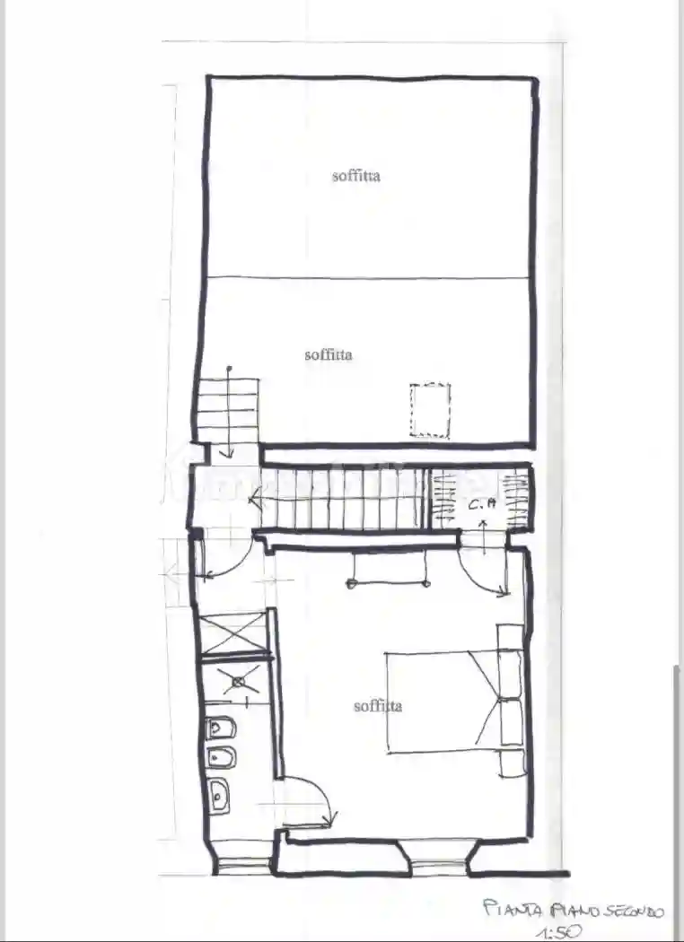
Al secondo ed ultimo piano abbiamo due ampi vani mansarda adibiti alla possibilità di ricavare almeno un'altra camera da letto.
Completa l'immobile un resede esclusivo.
Nessuna spesa condominiale.
Ottima esposizione che rende la casa
SEMPRE luminosa.
Disponibilita immediata.
Per ulteriori informazioni o per visitare l'immobile contattatemi in privato.

Caratteristiche

Piano T
Ascensore No
Stato Da ristrutturare

Servizi e accessori

Bagno per disabili Cucina Esposizione nord, sud Infissi esterni in vetro / legno

Posizione

Zona: Sant'Agostino (Sant'Agostino, Chiazzano)

Agenzia Immobiliare

Storico

Pubblicato 14 Jan 2026
Aggiornato 26 Feb 2026
Sul mercato 43 giorni
ID Annuncio 111872369