Indietro
Vendita Villetta a schiera

Villetta a schiera

Via Castellana, Martellago, Venezia

Prezzo
135
mq
5+
Locali
3
Camere
2
Bagni

Recensisci questo Immobile

Devi essere registrato per lasciare una recensione.

Accedi

Nessuna recensione ancora. Sii il primo!

Descrizione

Porzione di testa di schiera in pronta consegna ma con la possibilità di scegliere ancora le finiture dei pavimenti e dei rivestimenti per personalizzare la casa.
Per il tuo benessere una soluzione GREEN con materiali innovativi ecologici e con nuova realizzazione di carattere tecnico a basso consumo energetico e traspirante con isolamento termico e acustico per la tua tranquillità!!
Ti saranno consegnate totalmente finite chiavi in mano, con la possibilità di scegliere le finiture.
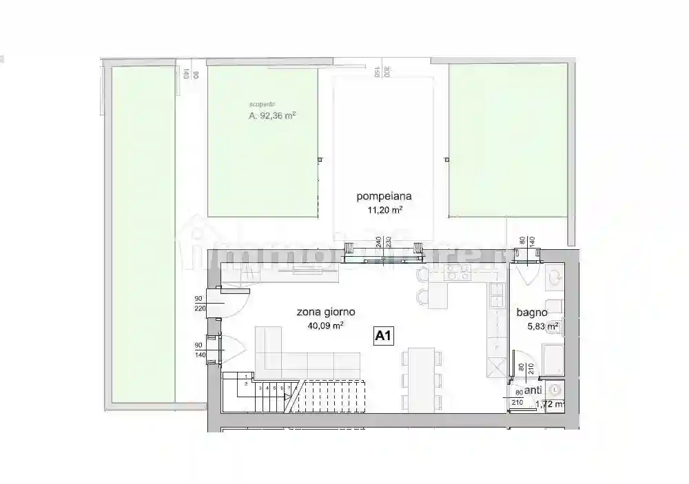
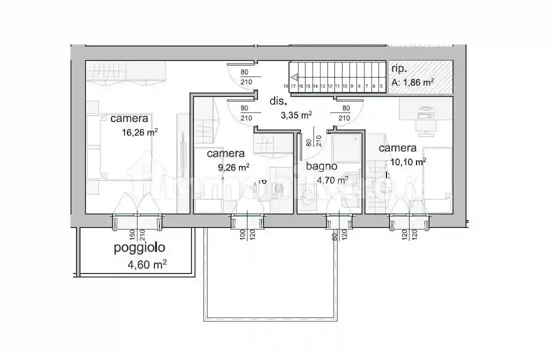
Buona disposizione di spazi interni con zona giorno openspace, bagno ampio finestrato e zona piano superiore raggiungibile da scala a vista legno acciaio con 3 stanze letto e altro bagno.
Garage e possibilità di secondo parcheggio.
Il giardino contorna l’abitazione e la zona patio/ pompeiana è utilissima per l’utilizzo dello spazio conviviale di tutta la famiglia.
Consegna in classe A4 con tutte le nuove tecnologie a risparmio energetico!!
La nostra agenzia è disponibile per farti visionare questa nuova casa, ti aspettiamo.

Classe Energetica A4 EP Kwh/mq anno
Prezzo Euro 339.000,00
Nostro Rif. MR01_P

Se per acquistare questo immobile hai la necessità di vendere prima un altro immobile, non preoccuparti perché ce ne occuperemo noi, seguendoti passo a passo sia nella vendita che nel successivo acquisto.

Si precisa che l'indirizzo esposto in pubblicità, per indicare la zona in cui si trova l'immobile in vendita, è puramente indicativo, al fine di salvaguardare la privacy del proprietario.

Per maggiori informazioni tel. 041.58.01.435 - cell. 393.96.30.883 – Email: info@visioneimmobiliare.it - Sito: https://www.visioneimmobiliare.it

VISIONE IMMOBILIARE La Strada sicura per Vendere ed Acquistare la Tua Casa! La pluriennale esperienza del suo team, attento e preparato, crea vero valore aggiunto per i propri clienti nel servizio di intermediazione immobiliare, sempre nel rispetto dei valori di onestà, correttezza, puntualità e professionalità. La vostra trattativa, quindi, sarà condotta dall’Agenzia come se foste voi stessi a farlo, con la stessa cura, la stessa dedizione e lo stesso senso di responsabilità. Il nostro mix di esperienza e innovazione è il nuovo modo di concepire l’intermediazione immobiliare: un servizio dinamico in funzione degli obiettivi del cliente, per dare soluzioni anche alle problematiche più complesse. Siamo in grado di soddisfare qualsiasi esigenza anche grazie al supporto sinergico di partner tecnico-legali esperti e qualificati. VISIONE IMMOBILIARE mette a disposizione del cliente un servizio completo per garantire una vendita o un acquisto senza problemi, fornendo assistenza sia al venditore sia all’acquirente a partire dalla determinazione delle esigenze fino al rogito notarile, con beneficio e soddisfazione di entrambi.

Caratteristiche

Ascensore No
Stato Nuovo / In costruzione
Riscaldamento Autonomo, a pavimento, alimentato a fotovoltaico

Servizi e accessori

Cancello elettrico Esposizione esterna Impianto tv singolo Infissi esterni in triplo vetro / PVC Porta blindata VideoCitofono

Posizione

Referente

VISIONE IMMOBILIARE SAS di Degli Agostini Chiara

Storico

Pubblicato 14 Jan 2026
Aggiornato 26 Feb 2026
Sul mercato 44 giorni
ID Annuncio 111975665