Vendita Villa

Villa

Via Belvedere, 2, Casciana Terme Lari, Pisa

250.000 €
Ottimo Affare: 66% sotto la media
443
mq
5+
Locali
11
Camere
3
Bagni

Recensisci questo Immobile

Devi essere registrato per lasciare una recensione.

Accedi

Nessuna recensione ancora. Sii il primo!

Descrizione

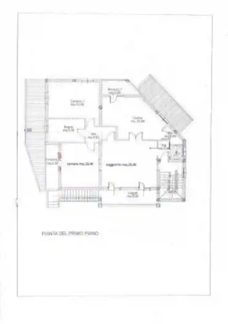
Lari zona panoramica, villa a sola di mq. 430 dislocata su più piani e com possibilità di realizzare anche due abitazioni indipendenti, e precisamente composta al: -P. T. da un appartamento con accesso da loggia, ingresso, ampio soggiorno di mq. 35, cucina abitabile con ripostiglio, due camere matrimoniali, bagno -P. 1° altro appartamento con accesso da scala esterna indipendente e loggia, ampio soggiorno, cucina abitabile con terrazzo, due camere matrimoniali di cui una con terrazzo, bagno, accesso al piano mansarda, con scala interna, di mq. 36 con bagno e terrazzo. -P. seminetrrato grande garage di mq. 60, locale lavanderia, bagno, stanza pluriuso di ma. 30 e cantina, il piano è collegato ai piani superiori anche da scala interna. L'immobile allo stato attuale è in fase di costruzione e viene venduto al grezzo, mancano gli intonaci interni, impianti, infissi, pavimenti e rivestimenti. Per la sua impostazione di indipendenza degli impianti e accessi si adatta bene anche a due famiglie che vogliono essere vicine ma indipendenti.

Caratteristiche

Piano T
Stato Buono / Abitabile
Riscaldamento Autonomo

Posizione

Referente

Case Toscane Immobiliare sas di Parentini Letizia e C.

Storico

Pubblicato 15 Jan 2026
Aggiornato 24 Feb 2026
Sul mercato 40 giorni
ID Annuncio 111985925

Recensioni

Vedi tutte
A

Antonio Sorrentino

4.7

Grazie di cuore per l'aiuto che mi avete dato nella ricerca del nuovo appartamento. Sono stato molto soddisfatto del vostro modo di spiegare le cose, sempre chiaro e mai pressante, che mi ha fatto sen...

L

Lorena Maltese

4.3

Ho avuto un'esperienza molto positiva con questa agenzia immobiliare a Pontedera. Sono stata seguita con grande cortesia e chiarezza in ogni passo della vendita del mio appartamento di famiglia, e que...

A

Arianna Roversi

4.3

Stavo cercando una casa vicino ai miei genitori anziani e ho trovato l'agenzia molto professionale e trasparente nelle valutazioni. Mi hanno seguita passo dopo passo, aiutandomi a scegliere l’immobile...