Indietro
Vendita Villetta a schiera

Villetta a schiera

Cesena, Forli Cesena

Prezzo
159
mq
5+
Locali
3
Camere
2
Bagni

Recensisci questo Immobile

Devi essere registrato per lasciare una recensione.

Accedi

Nessuna recensione ancora. Sii il primo!

Descrizione

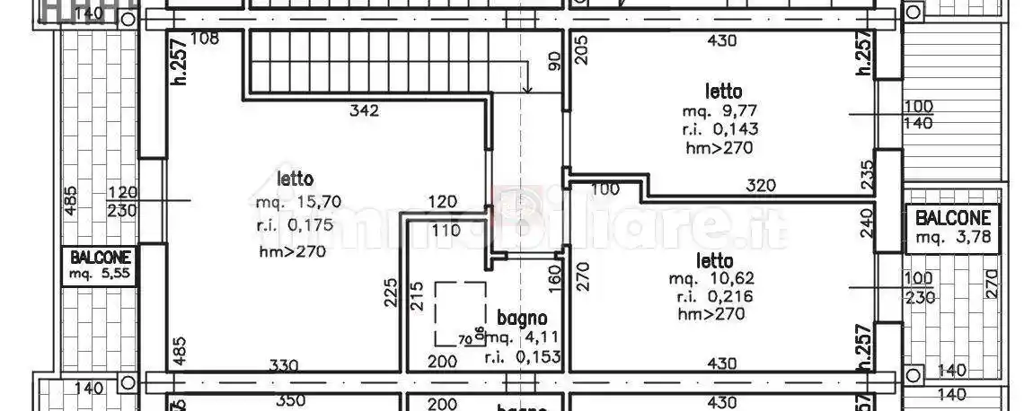
CASE FINALI (VSC496a7): adiacente a tutti i servizi di prima necessità, in zona residenziale circondata dal verde proponiamo graziosa VILLETTA A SCHIERA CENTRALE di NUOVA COSTRUZIONE (possibilità di personalizzazione finiture interne) così composta:
- PIANO INTERRATO: locale ad uso cantina/tavernetta (15 mq) e ampio garage di 30 mq;
- PIANO TERRA: ingresso, su soggiorno (21 mq), cucina abitabile (11 mq), disimpegno, bagno, GIARDINETTO PRIVATO sul fronte (25 mq) e terrazzo rialzato di mq. 32 sul lato cucina (ideale per pranzi e cene all'aperto);
- PIANO PRIMO: disimpegno, 3 camere letto (mq 15,70 + 10,50 + 10), bagno e due balconi.
La costruzione è realizzata in BIOEDILIZIA con CARATTERISTICHE DI ALTO RISPARMIO ENERGETICO : impianto di VMC (ventilazione meccanica forzata), predisposizione di impianto di climatizzazione e di aspirazione centralizzata, riscaldamento a pavimento con pompa di calore, PANNELLI FOTOVOLTAICI (1,5 Kw). ---- N.B. le presenti informazioni non costituiscono elemento contrattuale.

Caratteristiche

Ascensore No
Stato Nuovo / In costruzione
Riscaldamento Autonomo, a pavimento, alimentato a metano

Servizi e accessori

Porta blindata

Posizione

Zona: Ospedale - Case Finali (Stadio, La Fiorita, Ospedale, Case Finali)

Referente

Agenzia Globo

Storico

Pubblicato 12 Jan 2026
Aggiornato 20 May 2026
Sul mercato 129 giorni
ID Annuncio 112918211

Recensioni

Vedi tutte
M

Michele Pace

5.0

Un grazie di cuore per avermi seguito con tanta pazienza e professionalità in questa avventura. Avevo in mente un appartamento con vista mare e loro hanno capito subito le mie esigenze, accompagnandom...

A

Andrea Pascucci

4.0

Ho trovato un magazzino perfetto per la mia azienda grazie a quest'agenzia immobiliare a Cesena, che mi ha seguito con grande professionalità e calore. Sono stato molto soddisfatto del supporto contin...