Villa
Vendita
Vendita Villa

Villa

Quartiere Castiglione - Casemurate, Ravenna, Ravenna

199.000 €
Ottimo Affare: 61% sotto la media
300
mq
5+
Locali
12
Camere
3+
Bagni

Recensisci questo Immobile

Devi essere registrato per lasciare una recensione.

Accedi

Nessuna recensione ancora. Sii il primo!

Descrizione

Questa villa bifamiliare in vendita a Cervia, situata nella zona di Castiglione, rappresenta una splendida opportunità per chi desidera una residenza spaziosa e confortevole.
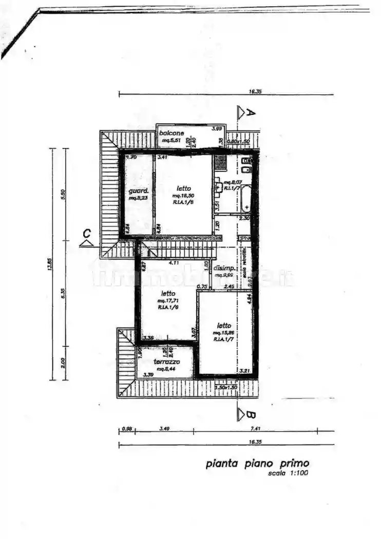
La casa si sviluppa su più piani, con una superficie totale di 300 metri quadrati, di cui 280 calpestabili.
Gli spazi interni sono ben distribuiti e suddivisi in 12 locali, tra cui 5 camere da letto e 4 bagni.
Lo stato di conservazione è grezzo, il che permette al futuro acquirente di personalizzare gli ambienti secondo i propri gusti e le proprie esigenze.
La residenza è circondata da un ampio giardino privato, dove poter trascorrere rilassanti momenti all'aria aperta e organizzare cene e pranzi con familiari e amici. Essa si sviluppa su 4 piani, garantendo così una maggiore privacy e tranquillità.

Caratteristiche

Stato Buono / Abitabile

Posizione

Zona: Castiglione (Fosso Ghiaia, Castiglione, San Zaccaria)

Referente

Agenzia NewCasa Immobiliare

Storico

Pubblicato 12 Jan 2026
Aggiornato 18 Feb 2026
Sul mercato 38 giorni
ID Annuncio 113027851

Recensioni

Vedi tutte
C

Claudia Lecce

4.7

La costante attenzione ai dettagli durante le visite mi ha colpito molto, mi sono sentita seguita e rassicurata in ogni fase. L'onestà nelle valutazioni e la disponibilità a trovare la soluzione più a...

A

Anna Trombetta

4.7

Ho trovato l’agenzia davvero disponibile e attenta alle mie esigenze, anche fuori dagli orari tradizionali. Mi sono sentita seguita con pazienza e professionalità durante tutto il percorso, il che mi...

C

Cinzia Leone

5.0

Ho trovato la seconda casa al mare in modo rapido e senza stress, grazie alla serietà e professionalità di questa agenzia. Mi sono sentita seguita passo dopo passo, sempre con tanta attenzione e corte...

A

Antonella Mazzoni

4.7

Stavo cercando un investimento immobiliare a Cervia e sono stata seguita da professionisti seri e affidabili. Hanno gestito tutto con grande attenzione, aiutandomi a mantenere la calma e a non stressa...