Vendita Appartamento

Appartamento

Spoleto, Perugia

320.000 €
155
mq
4
Locali
3
Camere
2
Bagni

Recensisci questo Immobile

Devi essere registrato per lasciare una recensione.

Accedi

Nessuna recensione ancora. Sii il primo!

Descrizione

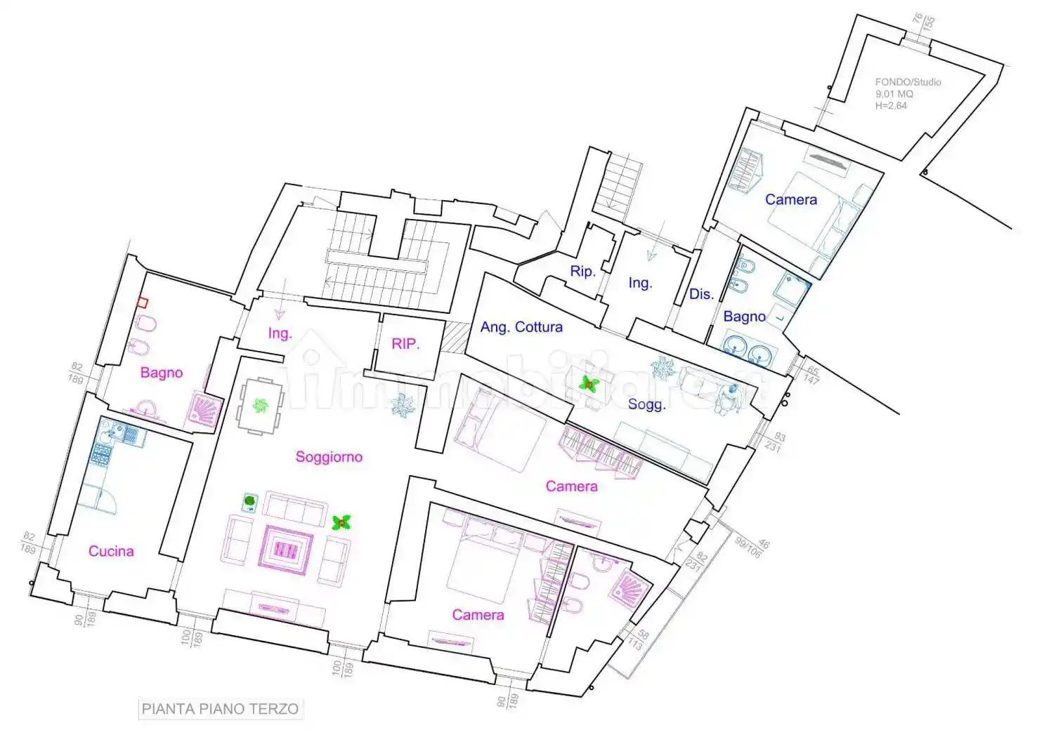
Rif. SP38 - Spoleto città, in zona tranquilla ma allo stesso tempo servita da posta, banche, farmacia e ogni tipo di attività commerciale, a soli 500 metri dal centro storico, esclusivo e signorile appartamento al primo piano di un edificio in costruzione con classe energetica "A4". L'appartamento si trova al primo piano servito da ascensore ed è composto da grande zona giorno con cucina open space, due camere da letto, di cui una con cabina armadio, uno studio, due bagni e ampio terrazzo abitabile accessibile dagli ambienti principali della casa, nel piano seminterrato un comodo garage di circa 20 mq,. Consegna prevista a dicembre 2024.

Per motivi di privacy l'indirizzo e l'indicazione nella mappa sono puramente indicativi.
Documentazione fotografica, testi, planimetrie, superfici ecc. sono puramente a scopo illustrativo e non costituiscono documenti con valore e presupposto contrattuale.

Caratteristiche

Piano 1
Ascensore Si
Stato Nuovo / In costruzione
Riscaldamento Autonomo

Servizi e accessori

Cancello elettrico Esposizione esterna Impianto tv centralizzato Infissi esterni in doppio vetro / legno Porta blindata VideoCitofono

Posizione

Referente

Domus Immobiliare

Storico

Pubblicato 14 Jan 2026
Aggiornato 24 Feb 2026
Sul mercato 41 giorni
ID Annuncio 113314373

Recensioni

Vedi tutte
S

Sofia Taverna

5.0

Durante il processo di ricerca della casa, mi sono sentita un po' stressata, ma l’agenzia è stata molto paziente e competente nel gestire ogni mia preoccupazione. Mi sono sentita ascoltata e capita, e...

G

Grazia Caruso

5.0

Prima di parlare con questa agenzia, avevo già provato altre esperienze che si erano rivelate complicate e poco trasparenti, ma qui è stato tutto diverso. Mi sono trovata subito seguita con grande pro...

G

Gabriella Brambilla

4.7

Se cercate un’agenzia immobiliare affidabile, consiglio di rivolgervi a professionisti competenti e disponibili. Sono stata seguita passo passo durante la mia ricerca di investimento a Spoleto e ho tr...

G

Gloria Quattrocchi

4.7

Quello che mi ha colpito di più è stata l'ampia scelta di immobili disponibili, che mi ha permesso di trovare facilmente il magazzino adatto alle mie esigenze. La squadra è stata sempre molto seguita...

P

Patrizia Ciccone

4.3

Stavo cercando un terreno a Spoleto per costruire la mia casa e, grazie alla loro assistenza, ho trovato quello perfetto in tempi rapidi. Mi sono sentita seguita passo passo, dall'acquisto alle pratic...