Vendita Appartamento

Appartamento

Via Bernardo da Serravalle, Vittorio Veneto, Treviso

90.000 €
Ottimo Affare: 62% sotto la media
160
mq
5+
Locali
4
Camere
2
Bagni

Recensisci questo Immobile

Devi essere registrato per lasciare una recensione.

Accedi

Nessuna recensione ancora. Sii il primo!

Descrizione

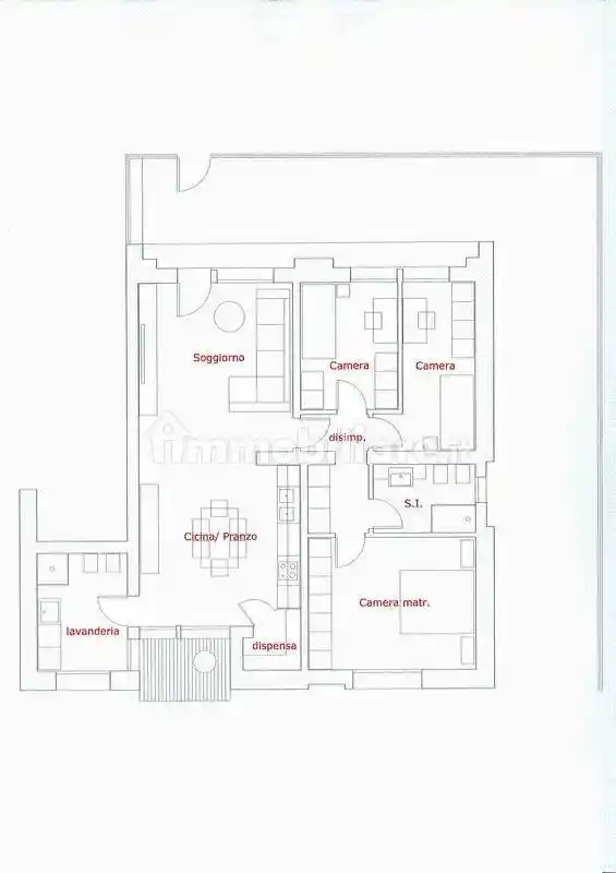
VITTORIO VENETO - Loc. Sant' Andrea - Unità commerciale situata al piano terra di un immobile di sole 2 unità. Trattasi di locali da trasformare in residenziale per realizzare due appartamenti autonomi ed indipendenti. La generosa metratura permette di ottenere due camere, ed un bagno per ogni appartamento insieme ad una comoda zona giorno. Esternamente un garage completa la proprietà insieme ad un piccolo scoperto. Ottima opportunità per realizzare due alloggi da investimento grazie alla posizione molto richiesta. A disposizione per tutte le informazioni e per l'esecuzione dei lavori. Ipe in fase di definizione. € 90.000,00.

Caratteristiche

Piano T

Posizione

Referente

C'è Casa

Storico

Pubblicato 14 Jan 2026
Aggiornato 24 Feb 2026
Sul mercato 40 giorni
ID Annuncio 113333489

Recensioni

Vedi tutte
L

Lucia Damiani

5.0

Ho trovato la casa al mare che sognavo grazie a un’agenzia davvero professionale. Mi hanno seguita passo dopo passo, aiutandomi a capire tutte le normative e le pratiche burocratiche senza stress. Son...

M

Miriam Capraro

4.7

Stavo cercando una seconda casa al mare e grazie all'aiuto di questa agenzia sono stata seguita passo dopo passo con tanta attenzione e empatia. Trovare l’immobile giusto non è stato semplice, ma loro...

C

Clara Chiari

4.7

Ho trovato l’ufficio perfetto per la mia attività grazie a un’agenzia immobiliare seria e professionale. Sono stata aiutata con pazienza e attenzione, anche durante le trattative più complesse, manten...

C

Chiara Seri

4.7

Ricordo ancora il momento in cui ho deciso di vendere l’appartamento di famiglia e sono stata subito seguita con grande attenzione. L’agenzia è stata molto flessibile negli orari, riuscendo ad adattar...

C

Cinzia Tibaldi

4.7

Se cercate un’agenzia immobiliare affidabile, consiglio di sceglierne una che sappia ascoltare e gestire bene le aspettative. Mi sono trovata molto soddisfatta per come sono stata seguita e aiutata du...