Indietro
Vendita Casa indipendente

Casa indipendente

Via Salarola, Baone, Padova

89.000 €
Ottimo Affare: 32% sotto la media
170
mq
4
Locali
3
Camere
2
Bagni

Recensisci questo Immobile

Devi essere registrato per lasciare una recensione.

Accedi

Nessuna recensione ancora. Sii il primo!

Descrizione

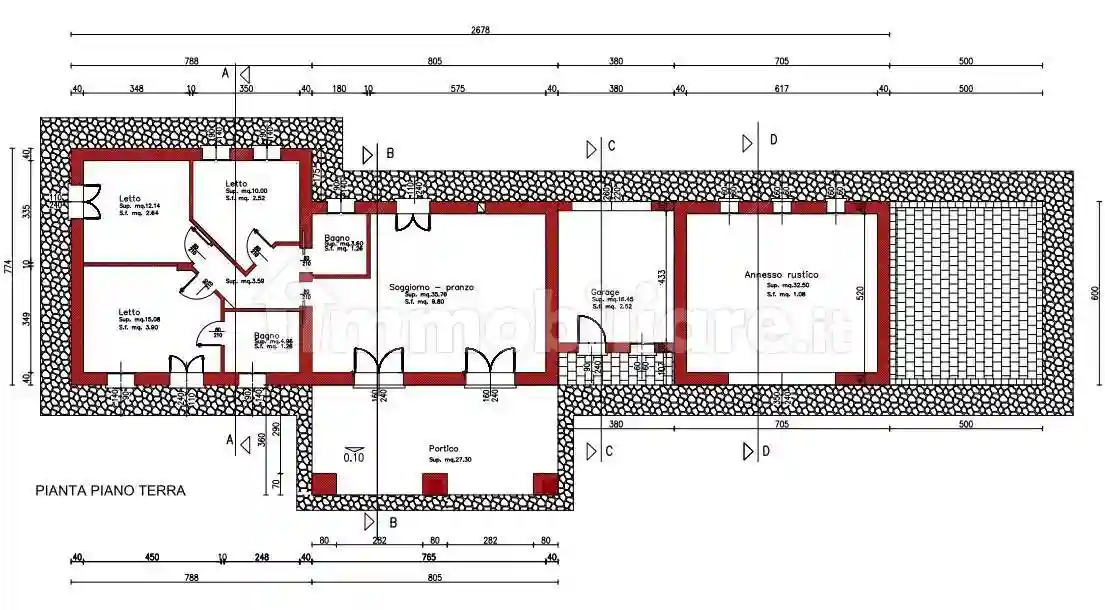
COMPOSIZIONE:
Terreno di circa 3500 mq, con progetto approvato per la realizzazione di un'abitazione singola, sviluppata in un unico piano. La soluzione presenta ampia zona giorno di circa 35 mq, porticato esterno, tre camere da letto e due bagni. Garage e annesso rustico di pertinenza.
CARATTERISTICHE:
Abitazione dagli spazi funzionali; può essere realizzata con impiantistica e materiali che permettono un alto comfort energetico.
CONTESTO:
ubicato nel bellissimo contesto paesaggistico dei Colli Euganei.
COMMENTO:
Ideale per chi cerca per la privacy e la tranquillità, senza rinunciare alla vicinanza ai servizi.

Per info e appuntamenti: DICASA agenzia immobiliare
cel 3316601020 - info@dicasaimmobiliare.it

Caratteristiche

Piano T
Ascensore No
Stato Ottimo / Ristrutturato
Riscaldamento Autonomo, a pavimento

Posizione

Referente

DiCASA SRL

Storico

Pubblicato 14 Jan 2026
Aggiornato 26 Feb 2026
Sul mercato 43 giorni
ID Annuncio 113449327

Recensioni

Vedi tutte
A

Arianna Iacovelli

4.7

Ho venduto la mia casa rapidamente e senza complicazioni grazie alla loro gestione professionale e attenta. Sono stata seguita passo dopo passo, con molta disponibilità e pazienza, riuscendo a ridurre...