Indietro
Rustico, nuovo, 194 m², Aquilea - Mastiano, Lucca
Vendita
Vendita Rustico - Casale Luxury

Rustico, nuovo, 194 m², Aquilea - Mastiano, Lucca

Lucca, Lucca

980.000 €
194
mq
5
Locali
4
Camere
3+
Bagni

Recensisci questo Immobile

Devi essere registrato per lasciare una recensione.

Accedi

Nessuna recensione ancora. Sii il primo!

Descrizione

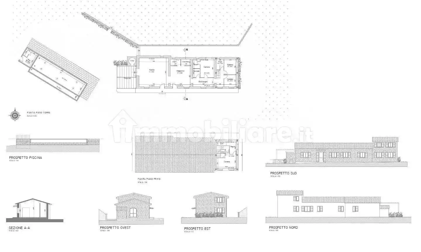
N032M - Aquilea (LU) - In splendida zona panoramica sulle colline lucchesi Villa in stile rustico in fase di realizzazione viene venduto chiavi in mano. Si estende per una superficie di circa 260 mq. circondato da circa 5000 mq. di giardino in parte con ulivi. Completa la proprietà la piscina con locale di servizio. Classe energetica prevista: A. Nel progetto attuale, che può essere modificato e personalizzato, sono previsti: Ingresso su ampio soggiorno, cucina abitabile di grandi dimensioni da cui si accede al pergolato esterno dotato di forno a legna, zona lavanderia e bagno, dal disimpegno si passa alla zona notte dove insistono 1 camera matrimoniale con bagno privato, 1 camera doppia e 1 studio, bagno. Prendendo le scale saliamo al piano superiore di circa 34mq. dove è prevista la realizzazione di 1 ulteriore camera con cabina armadio, bagno con zona doccia - sauna. Per motivi di riservatezza, la geolocalizzazione dell'immobile indica la zona in particolare, ma non l'indirizzo esatto dell'immobile. Classe energetica: In attesa di certificazione.

Caratteristiche

Piano Piano terra
Ascensore No
Stato Nuovo / In costruzione
Riscaldamento Autonomo

Servizi e accessori

Porta blindata Piscina Giardino privato

Posizione

Zona: Aquilea - Mastiano (Ponte a Moriano, Aquilea, Mastiano, Brancoleria)

Storico

Pubblicato 30 Dec 2025
Aggiornato 15 Feb 2026
Sul mercato 52 giorni
ID Annuncio 113560717

Recensioni

Vedi tutte
R

Riccardo Merli

4.3

Ho trovato la casa perfetta grazie ad un team davvero affidabile e cortese. Sono stato seguito con professionalità e attenzione in ogni fase, rendendo tutto molto più semplice. Consiglio questa agenzi...

B

Bruno Villa

4.3

Rispetto ad altre esperienze, questa agenzia si distingue per la loro puntualità negli appuntamenti e la disponibilità costante. Sono stato molto soddisfatto del modo in cui sono stato seguito durante...

F

Federico Santarelli

4.3

Grazie mille per avermi seguito con professionalità e chiarezza in tutto il percorso. Ho trovato casa in poco tempo grazie alle spiegazioni dettagliate e alla competenza dimostrata durante la trattati...

F

Filippo Barbieri

4.0

Ricordo ancora il momento in cui ho trovato la mia casetta al mare, tutto grazie alla loro tempestività e professionalità. Sono stato molto colpito dall’efficienza con cui hanno gestito tutta la parte...