Indietro
Vendita Casa indipendente

Casa indipendente

Via Salarola, Baone, Padova

119.000 €
Ottimo Affare: 35% sotto la media
240
mq
1
Locali

Recensisci questo Immobile

Devi essere registrato per lasciare una recensione.

Accedi

Nessuna recensione ancora. Sii il primo!

Descrizione

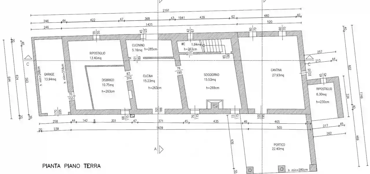
COMPOSIZIONE:
Abitazione singola dalle ampie metrature con progetto approvato per ristrutturazione e ampliamento.
Il terreno su cui insiste l'immobile è di circa 5700 mq. La soluzione si compone di: cucina, sala da pranzo e salotto, bagno e cantina/ taverna, al piano superiore tre camere da letto padronali con bagno privato.
CARATTERISTICHE:
L'immobile necessita di una ristrutturazione importante, attualmente presenta la struttura tipica dei rustici con muri in pietra e solai in legno.
CONTESTO:
ubicato nel bellissimo contesto paesaggistico dei Colli Euganei.
COMMENTO:
Ideale per chi cerca spazi ampi, contesto tranquillo, senza rinunciare alla vicinanza ai servizi.

Per info e appuntamenti: DICASA agenzia immobiliare
cel 3316601020 - info@dicasaimmobiliare.it

Caratteristiche

Ascensore No
Stato Da ristrutturare
Riscaldamento Autonomo, a radiatori

Posizione

Referente

DiCASA SRL

Storico

Pubblicato 14 Jan 2026
Aggiornato 24 Feb 2026
Sul mercato 41 giorni
ID Annuncio 113585333

Recensioni

Vedi tutte
A

Arianna Iacovelli

4.7

Ho venduto la mia casa rapidamente e senza complicazioni grazie alla loro gestione professionale e attenta. Sono stata seguita passo dopo passo, con molta disponibilità e pazienza, riuscendo a ridurre...