Vendita Appartamento

Appartamento

Viale Italia, Tirano, Sondrio

280.000 €
74
mq
3
Locali
2
Camere
1
Bagni

Recensisci questo Immobile

Devi essere registrato per lasciare una recensione.

Accedi

Nessuna recensione ancora. Sii il primo!

Descrizione

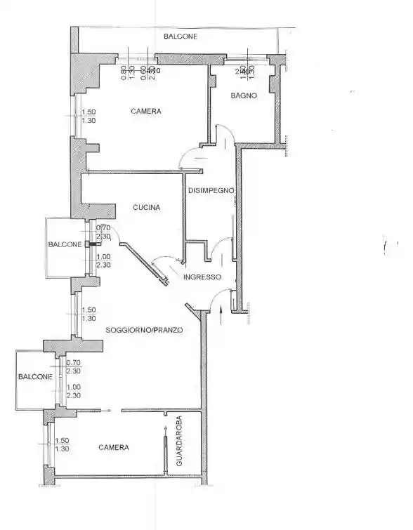
tirano viale italia residence "quadrifoglio" in costruzione prenotasi appartamento piano terra mq. 74 composto da cottura soggiorno, 2 camere, bagno, box doppio e giardino privato. possibilita' appartamenti varie metrature con box e giardino.

Caratteristiche

Piano T
Ascensore Si
Stato Nuovo / In costruzione
Riscaldamento Autonomo, a pavimento, alimentato a teleriscaldamento

Servizi e accessori

Cancello elettrico Infissi esterni in doppio vetro / PVC Porta blindata VideoCitofono

Posizione

Referente

Eurospa - Sondrio

Storico

Pubblicato 13 Jan 2026
Aggiornato 24 Feb 2026
Sul mercato 42 giorni
ID Annuncio 113877111

Recensioni

Vedi tutte
V

Vito Rocca

5.0

Ho trovato il team davvero disponibile e attento a ogni dettaglio durante la vendita del mio appartamento di famiglia. Mi sono sentito seguito passo dopo passo, anche nella fase di gestione del mutuo,...

M

Matteo Ferrari

4.0

Quando mi sono messo a cercare un bilocale a Sondrio, ero un po' nervoso all’inizio, ma l’agenzia mi ha subito messo a mio agio. La gestione burocratica è stata rapidissima e senza stress, il che ha r...

C

Cesare Sabatini

4.0

Ho trovato l’appartamento perfetto per i miei figli universitari grazie alla pazienza e alla conoscenza approfondita del mercato locale dell’agenzia. Sono stato seguito con professionalità e attenzion...