Indietro
Vendita Casa indipendente

Casa indipendente

Via Conte Mellerio, 32, Malesco, Verbania

187.000 €
190
mq
3
Locali

Recensisci questo Immobile

Devi essere registrato per lasciare una recensione.

Accedi

Nessuna recensione ancora. Sii il primo!

Descrizione

Sei alla ricerca di una casa singola con cortile in Valle Vigezzo? Ho quello che fa per te!
In comune di Malesco, nel centro storico, attorniato da corti e vicoli ma completamente affacciata su prati e monti, ti propongo in vendita questa antica casa indipendente al rustico da ultimare.

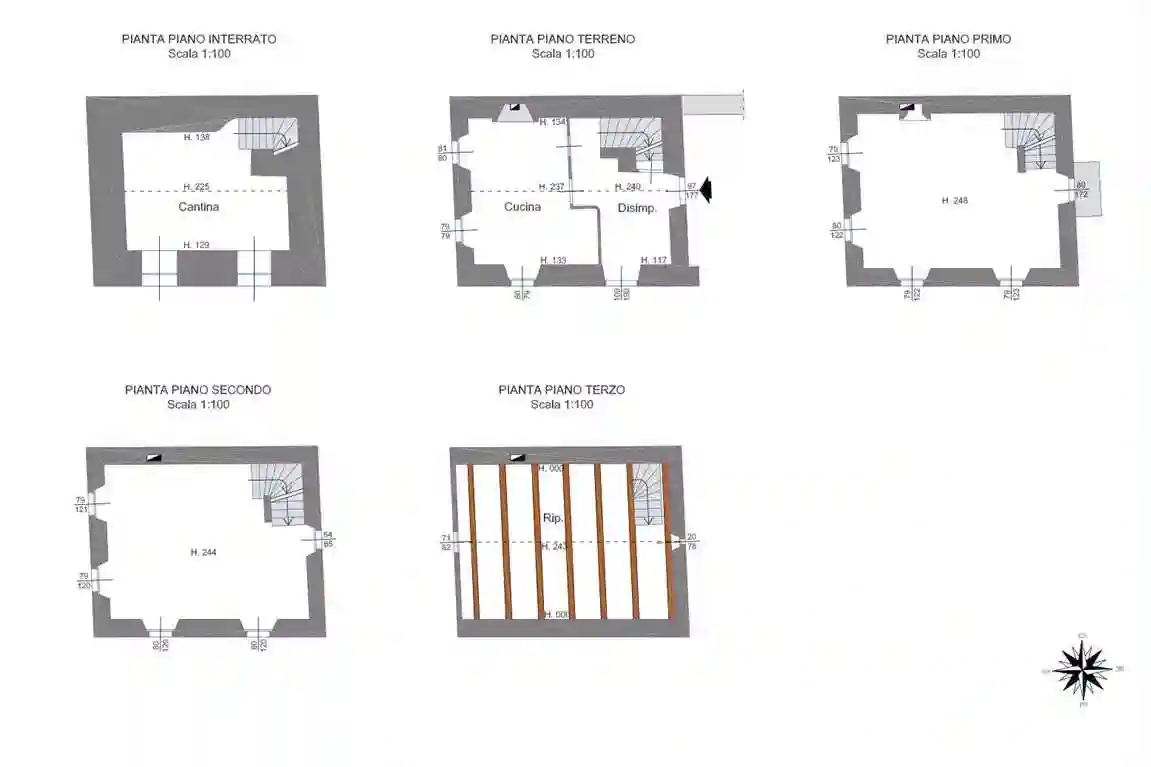
L'immobile, di 190 mq commerciali e 146 calpestabili, è composto da ingresso su disimpegno e cucina al piano terra, unico vano con camino al piano primo, unico vano al piano secondo e ampio sottotetto, cantina a volta nel piano seminterrato.

La casa si trova al rustico, sono infatti già stati realizzati i seguenti lavori:
- scrostatura completa dei muri perimetrali interni dalla vecchia calcina, pronti per essere nuovamente intonacati;
- sabbiatura e levigatura dei travi in legno del soffitto;
- impianto idraulico: nuovo allacciamento dall'acquedotto comunale con relativo pozzetto per ogni piano, totalmente indipendente;
- riscaldamento: nuovo allaccio alla rete del metano (no radiatori);
- Impianto elettrico: collegati tubi portacavi per ogni piano (no cavi);
- impianto fognario: nuovo collegamento alla fogna comunale e relativi tubi di scarico per ogni unità (Geberit);
- tetto in piode tradizionali completamente revisionato;
- canali pluviali in rame sostituiti da pochi anni.

A completamento della proprietà cortile esclusivo di 24 mq.

Ottimo investimento per chi cerca un'abitazione in cui respirare l'antica tradizione architettonica della valle vigezzo.

Se ti ho incuriosito dai un’occhiata alla planimetria e al video che trovi in calce all’annuncio sul mio sito o sul mio canale Youtube (NEST_HOME Immobiliare), potresti scoprire che è proprio quello che stavi cercando!


CHIAMAMI se vuoi visitarlo! Sono disponibile anche per una Video Call o visita virtuale!



NEST HOME IMMOBILIARE! Tutti hanno bisogno di un nido… e di un’agenzia itinerante! Scopri di più su www.nest-****** o contattaci al numero +39 342.8071531 o via mail nesthomeimmobiliare@gmail.com

Caratteristiche

Piano T
Ascensore No
Stato Da ristrutturare

Servizi e accessori

Caminetto Infissi esterni in vetro / legno

Posizione

Referente

NEST HOME Immobiliare

Storico

Pubblicato 14 Jan 2026
Aggiornato 23 Feb 2026
Sul mercato 41 giorni
ID Annuncio 113922991

Recensioni

Vedi tutte
O

Oscar D'Agostino

4.7

Grazie di cuore per l’aiuto! Ho trovato il bilocale perfetto grazie alla conoscenza approfondita del mercato locale e alla puntualità negli appuntamenti, che hanno reso tutto molto più facile e senza...

O

Ornella Mazzi

4.3

Durante il processo di vendita mi sono sentita davvero rassicurata e piena di fiducia, grazie alla competenza e alla professionalità dimostrata dall'agenzia. Mi sono trovata seguita passo passo, con a...