Vendita Appartamento

Appartamento

Via Adige, Montecchia di Crosara, Verona

265.000 €
Buon Prezzo: 21% sotto la media
180
mq
3
Locali
2
Camere
1
Bagni

Recensisci questo Immobile

Devi essere registrato per lasciare una recensione.

Accedi

Nessuna recensione ancora. Sii il primo!

Descrizione

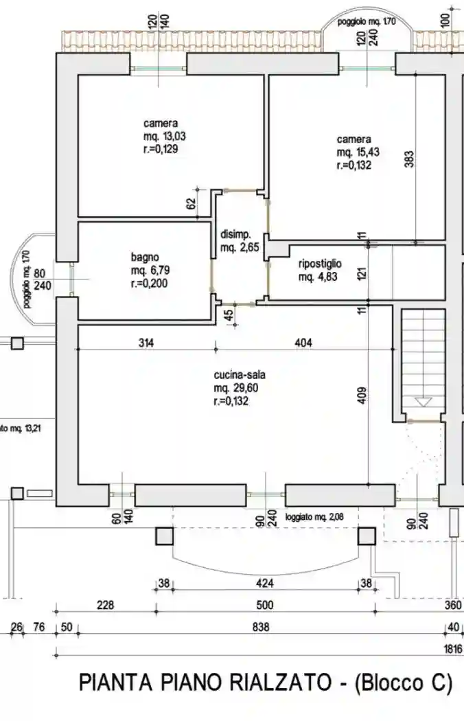
LA PERGOLA, MONTECCHIA DI CROSARA: appartamento nuovo 2024 piano terra, trilocale con giardino privato, disposto su due livelli.
Al piano terra, ingresso indipendente, cucina abitabile e sala open space, bagno con balcone, camera da letto doppia, camera da letto matrimoniale con altro balcone, disimpegno e ripostiglio/ locale caldaia.
Giardino privato di 71 mq.
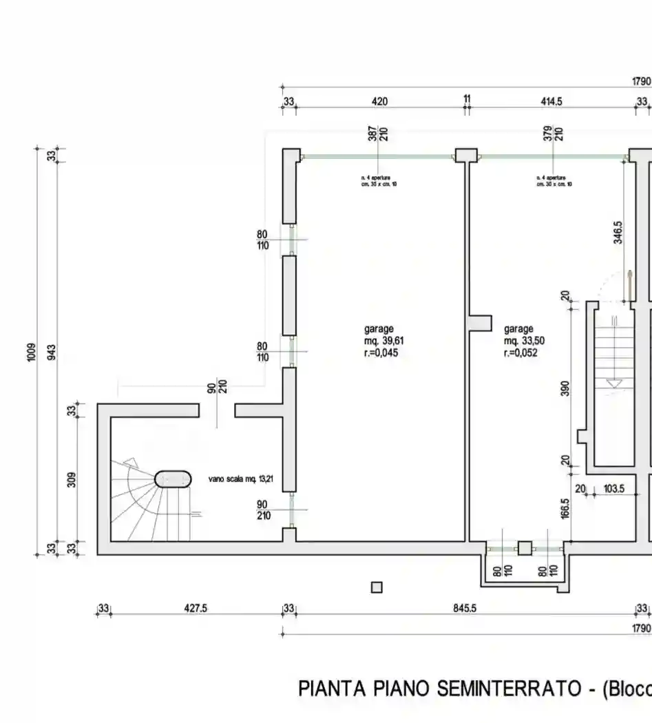
Con accesso diretto dal piano terra, tramite scala, troviamo il piano seminterrato con garage di 33,50 mq.
Appartamenti di nuova costruzione 2024: cappotto isolante, termoblocco, struttura antisismica, riscaldamento autonomo a pavimento, pompa di calore (caldo/freddo).
Classe energetica A4. No gas, tutto ad induzione. Impianto fotovoltaico.
Capitolato disponibile. Finiture interne personalizzabili.
Contesto ottimo, molto tranquillo e silenzioso ma allo stesso tempo vicino ai principali servizi.

Il gruppo che gestisce l'agenzia MyHome Immobiliare opera ormai da diversi anni sulle province di Vicenza e di Verona.
Grazie alla nostra esperienza e preparazione siamo in grado di fornire servizi immobiliari a 360°.
Il nostro team crede fortemente nell’etica professionale, e il nostro obbiettivo è quello di soddisfare le esigenze immobiliari con affidabilità, trasparenza e serietà.
Sei alla ricerca della tua nuova casa o vuoi vendere la tua abitazione?
Rivolgiti al nostro team di esperti.
Ti aspettiamo nelle nostri sedi di Arzignano (VI) e San Bonifacio (VR).

Caratteristiche

Piano T
Ascensore No
Stato Nuovo / In costruzione

Servizi e accessori

Armadio a muro Cancello elettrico Taverna

Posizione

Referente

MyHome Immobiliare

Storico

Pubblicato 15 Jan 2026
Aggiornato 24 Feb 2026
Sul mercato 40 giorni
ID Annuncio 114079829

Recensioni

Vedi tutte
M

Maurizio Corsi

5.0

Se cercate un'agenzia seria e precisa, ve la consiglio vivamente! Ho trovato l'appartamento perfetto per i miei figli universitari grazie alla loro professionalità e attenzione ai dettagli. Sono stato...

T

Tito Lama

5.0

Se cercate un’agenzia affidabile per l’acquisto di un immobile, consiglio di sceglierne una che sappia gestire lo stress della trattativa e abbia attenzione alle vostre esigenze. Sono stato molto sodd...

B

Bruno Coppola

4.7

Ho scelto questa agenzia perché mi ha subito trasmesso professionalità e cortesia. Durante tutta la trattativa, ho trovato grande supporto e gestione dello stress, il che ha reso tutto molto più sempl...

M

Massimo Quattrocchi

4.7

Durante il processo mi sono sentito rassicurato e pieno di entusiasmo, grazie alla capacità di ascolto e alla rapidità con cui mi hanno seguito. Ho trovato l’investimento perfetto senza stressarmi tro...

I

Ivano Mancini

4.0

Stavo cercando una casa più vicina ai miei genitori anziani, qualcosa che potesse facilitare le visite e il sostegno quotidiano. L'agenzia si è dimostrata molto attenta alle mie esigenze, offrendo val...