Indietro
Vendita Casa indipendente

Casa indipendente

Via Ciano Costanzo, Urbana, Padova

120.000 €
Ottimo Affare: 71% sotto la media
594
mq
5+
Locali
4
Camere
2
Bagni

Recensisci questo Immobile

Devi essere registrato per lasciare una recensione.

Accedi

Nessuna recensione ancora. Sii il primo!

Descrizione

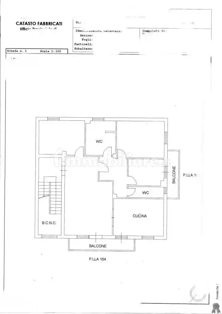
In centro al paese, comodo a tutti i servizi proponiamo in vendita compendio immobiliare di ampia metratura così composto: al piano terra locale commerciale dotato di vetrine fronte strada, locale artigianale attualmente adibito a laboratorio di sartoria. Al piano primo due unità abitative e locali accessori. Ideale anche per investitori.
Per maggiori informazioni contattare il nostro ufficio.

Caratteristiche

Piano 2 piani: Piano terra, 1°
Stato Buono / Abitabile
Riscaldamento Autonomo

Servizi e accessori

Esposizione doppia

Posizione

Storico

Pubblicato 04 Jan 2026
Aggiornato 26 Feb 2026
Sul mercato 53 giorni
ID Annuncio 114754001

Recensioni

Vedi tutte
E

Eugenio Tamburini

4.7

Ho trovato l’appartamento perfetto per i miei figli in modo rapido e senza stress, grazie alla grande attenzione alle mie esigenze. L’agenzia è stata sempre puntuale negli appuntamenti e mi ha seguito...

G

Giulia Franco

4.7

Stavo cercando una prima casa in zona Bevilacqua e ho trovato l'agenzia davvero affidabile. Mi sono sentita seguita e aiutata in ogni fase, con risposte sempre tempestive e chiare. Apprezzo molto l’on...

E

Eva Mazza

4.7

Quello che mi ha spinto a scegliere questa agenzia è stata la loro disponibilità e l’ampia scelta di immobili, che mi hanno fatto sentire subito rassicurata. Sono stata seguita con grande attenzione e...