Vendita Villa Luxury

Villa

Strada Cura Mostrapiedi, Montegranaro, Fermo

Prezzo su richiesta
700
mq
5+
Locali
3
Camere
3+
Bagni

Recensisci questo Immobile

Devi essere registrato per lasciare una recensione.

Accedi

Nessuna recensione ancora. Sii il primo!

Descrizione

Villa signorile

Proponiamo in vendita in zona tranquilla e non isolata,
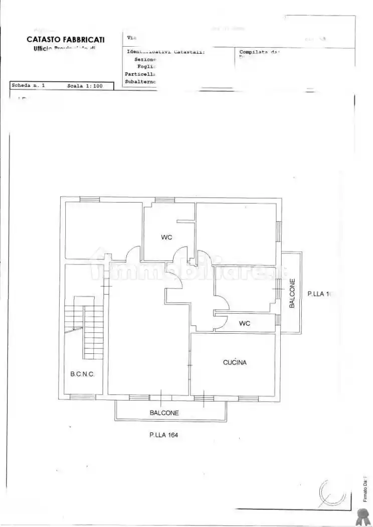
villa singola di prestigio disposta su 4 piani di mq. 700 circa totali come segue:
p.terra ampio salone d'ingresso, cucina abitabile e bagno di servizio;
al p°1 troviamo il reparto notte con 3 camere da letto e 3 bagni;
+mansarda;
al ps1 troviamo una taverna con cucina attrezzata, salone e bagno; nel ps1 e' presente anche un comodo garage.
Completa la proprieta' un giardino piantumato e recintato di circa 1.500 mq.
Villa signorile.
In ottimo stato interno!!
Arredata con mobilio di pregio!! Con parquet.
Trattative molto riservate in agenzia.
Prezzo interessantissimo......

Caratteristiche

Ascensore No
Stato Ottimo / Ristrutturato
Riscaldamento Autonomo, a radiatori

Servizi e accessori

Armadio a muro Cancello elettrico Esposizione esterna Impianto di allarme Impianto tv singolo Infissi esterni in doppio vetro / PVC Mansarda Porta blindata Taverna

Posizione

Referente

Bedetta

Storico

Pubblicato 13 Jan 2026
Aggiornato 25 Feb 2026
Sul mercato 43 giorni
ID Annuncio 114857325

Recensioni

Vedi tutte
L

Luciano Saldi

4.7

Ho trovato un appartamento in affitto a Porto Sant'Elpidio grazie a un’agenzia molto professionale. La gestione della trattativa è stata senza stress, grazie alla loro capacità di ascolto e attenzione...