Vendita Villa

Villa

Via Montenevoso, , Cecina, Livorno

370.000 €
110
mq
5
Locali
3
Camere
1
Bagni

Recensisci questo Immobile

Devi essere registrato per lasciare una recensione.

Accedi

Nessuna recensione ancora. Sii il primo!

Descrizione

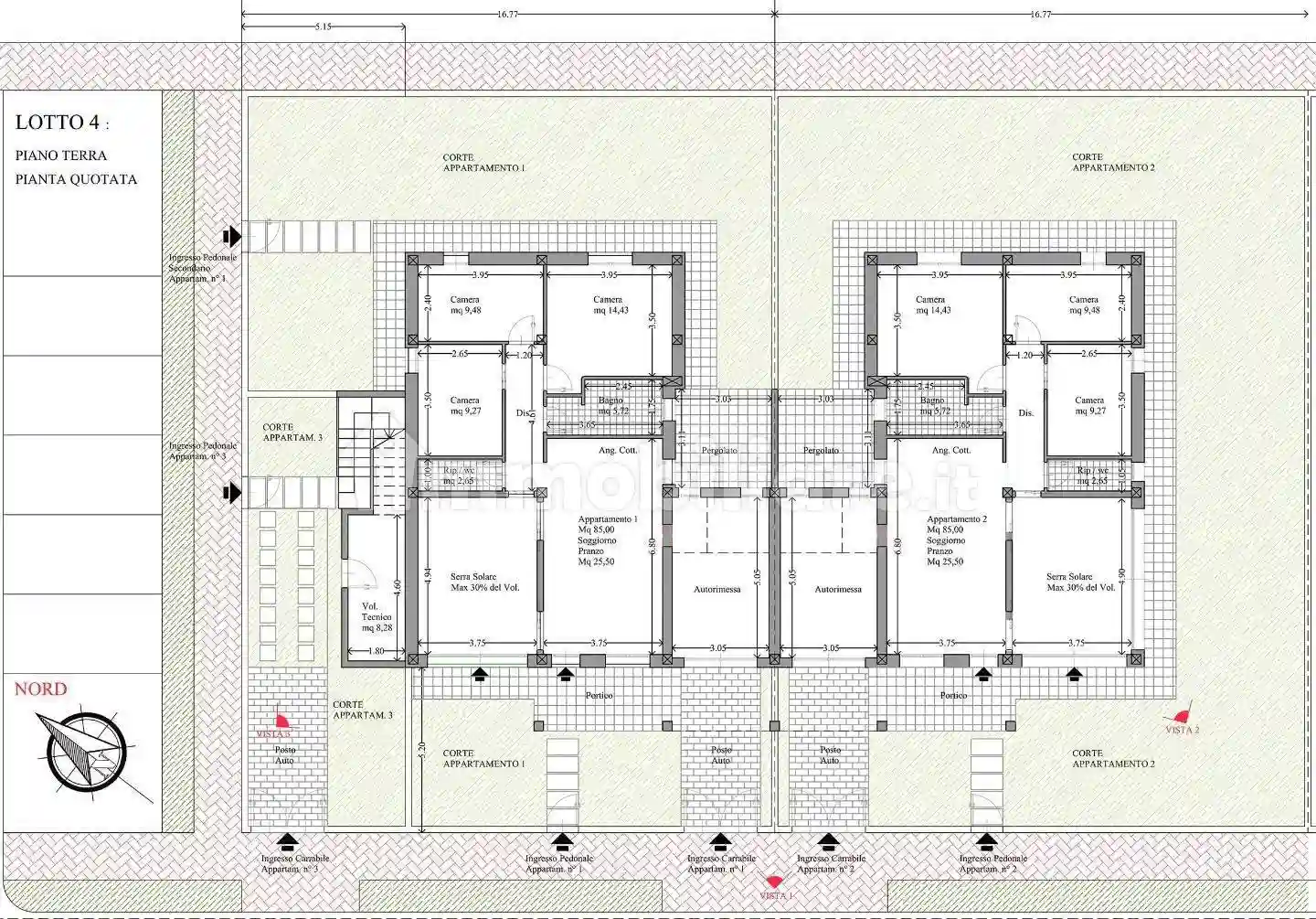
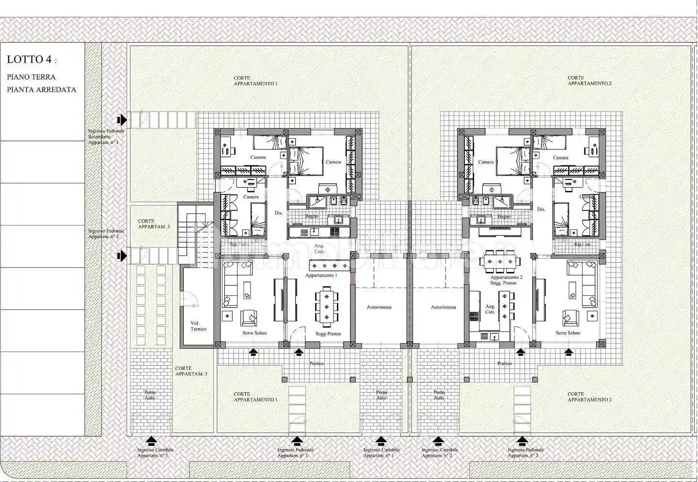
Cecina: appartamento al piano terreno in Villetta Trifamiliare - 5 vani - 110 mq - con ingresso indipendente - Dal portico si accede in soggiorno dove abbiamo anche l'angolo cottura e l'accesso alla serra solare, per complessivi 45 mq circa, oltre a 3 camere e 1 bagno (con possibilità di realizzare il 2°). Completa la proprietà un bellissimo giardino di circa 80 mq, posto in parte sul lato d'ingresso e sulla parte dietro della casa, è presente un posto auto interno alla proprietà e un garage con pergolato. La casa in pubblicità è visibile nella planimetria "Appartamento 1 (a sinistra)". Il fabbricato, avrà un ottimo capitolato e sarà realizzato secondo le normative di legge per poter raggiungere la massima classe Energetica.
L'immobile è in zona residenziale con ampi spazi verdi, piste ciclabili e parcheggi, vicino a tutti i servizi. Si vendono 3 appartamenti, disposti al piano terreno e primo e la Villetta al piano terreno libera su tre lati. Gli appartamenti sono tutti disponibili.
Classe energetica: A4 - Rif. 76 A

Caratteristiche

Piano T
Ascensore No
Stato Nuovo / In costruzione
Riscaldamento Autonomo

Posizione

Referente

Agenzia Immobiliare Tuscania di Francalacci Massimo

Storico

Pubblicato 14 Jan 2026
Aggiornato 24 Feb 2026
Sul mercato 41 giorni
ID Annuncio 114904215

Recensioni

Vedi tutte
L

Laura Bosco

5.0

Ho venduto il mio appartamento di famiglia con grande soddisfazione grazie a questa agenzia a Cecina. Mi sono trovata molto bene per la chiarezza nelle spiegazioni e la pazienza dimostrata durante tut...

R

Roberta Catalfamo

4.3

Dopo anni di affitto, cercavo una casa a Cecina e finalmente l’ho trovata grazie a questa agenzia. Mi sono trovata molto bene: sono stata seguita passo passo, con grande professionalità e chiarezza ne...