Indietro
Vendita Palazzo - Edificio

Palazzo - Edificio in Vendita

Via della Libertà, 90, Ortona, Chieti

Prezzo
Ottimo Affare: 39% sotto la media
900
mq
4
Locali
2
Bagni

Recensisci questo Immobile

Devi essere registrato per lasciare una recensione.

Accedi

Nessuna recensione ancora. Sii il primo!

Descrizione

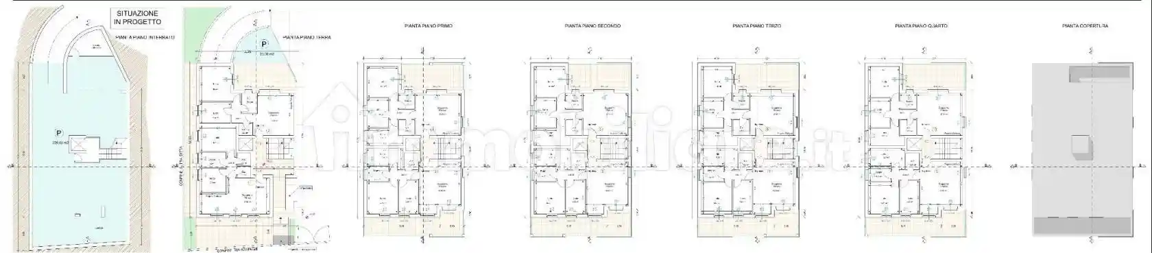
Ortona - Via della Libertà - Si vende in zona centralissima intera palazzina con progetto approvato di demolizione e ricostruzione per la realizzazione di dieci appartamenti.

Oneri di urbanizzazione già pagati e progetto immediatamente cantierabile.
Trattativa riservata.

Caratteristiche

Piano 5 piani: Piano terra, da 1° a 4°, con ascensore
Garage 1 in box privato/box in garage

Servizi e accessori

Esposizione esterna Balcone Infissi esterni in triplo vetro / metallo

Posizione

Agenzia Immobiliare

Storico

Pubblicato 11 Jan 2026
Aggiornato 26 Feb 2026
Sul mercato 46 giorni
ID Annuncio 115313621