Indietro
Vendita Casa indipendente

Casa indipendente

Sarzana, La Spezia

Prezzo
76
mq
4
Locali
2
Camere
2
Bagni

Recensisci questo Immobile

Devi essere registrato per lasciare una recensione.

Accedi

Nessuna recensione ancora. Sii il primo!

Descrizione

Nuova proposta di Immobiliare Il Centro!
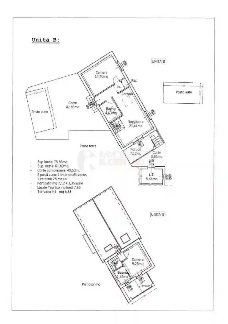
Nel Comune di Sarzana in Loc. Nave, proponiamo in complesso trifamigliare in fase di completa costruzione semindipendente terratetto con giardino privato con posto auto interno oltre ad ulteriore posto auto esterno.
L'immobile disposto su due livelli è composto da: al Piano Terra ingresso da corridoio, soggiorno con angolo cottura e porticato con accesso a corte, disimpegno, camera e bagno; al Piano Primo camera con bagno e terrazza abitabile.
Completa la proprietà una cantina.
Ottime rifiniture (riscaldamento a pavimento integrato con pompe di calore per acqua sanitaria, pannelli fotovoltaici da 3,5 kW ad appartamento, pompe di calore).
Detrazione fiscale per bonus edilizio di €96.000, detraibile al 50%.

Caratteristiche

Ascensore No
Stato Nuovo / In costruzione
Riscaldamento Autonomo, a pavimento, alimentato a metano

Servizi e accessori

Porta blindata

Referente

Immobiliare Il Centro

Storico

Pubblicato 12 Jan 2026
Aggiornato 09 Apr 2026
Sul mercato 88 giorni
ID Annuncio 115354747

Recensioni

Vedi tutte
M

Marilena Del Vecchio

4.7

Se stai cercando un’agenzia affidabile per trovare la tua casa da sogno, ti consiglio di rivolgerti a questa. Sono stata seguita passo dopo passo e mi sono sentita davvero supportata, anche dopo aver...

N

Noemi De Simone

4.7

La sensazione di essere seguita passo dopo passo con tanta professionalità mi ha colpito fin da subito. Sono stata davvero soddisfatta della rapidità con cui hanno gestito la vendita del mio locale co...