Vendita Villa Luxury

Villa

Contrada Pennini, Avellino, Avellino

Prezzo
500
mq
5
Locali
3
Camere
3
Bagni

Recensisci questo Immobile

Devi essere registrato per lasciare una recensione.

Accedi

Nessuna recensione ancora. Sii il primo!

Descrizione

rif: danic -010
proponiamo in vendita incantevole villa in zona di prestigio.
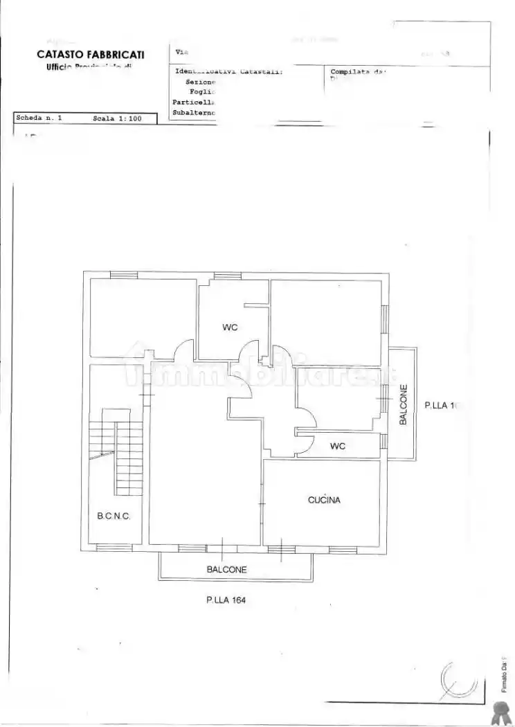
la villa di recente costruzione, realizzata con materiali di alta qualità finiture di pregio e tutti i più; moderni confort. la villa si sviluppa interamente su unico livello di superficie interna 250mq divisa:
ingresso con salone openspace
3 camere
2 bagni
cucina abitabile.
l' openspace, tramite una vetrata scorrevole, da accesso ad una terrazza coperta adibita a sala da pranzo e salone all'aperto con caminetto . ed accesso all'ampio giardino di 1500 mq che circonda la villa.
completa la villa un ulteriore piano interato di 250mq con garage.

per info : contattare daniela al 345.8531956

Caratteristiche

Ascensore No
Stato Ottimo / Ristrutturato
Riscaldamento Autonomo, a radiatori, alimentato a metano

Servizi e accessori

Caminetto Cancello elettrico Esposizione esterna Fibra ottica Idromassaggio Impianto di allarme Impianto tv singolo Infissi esterni in vetro / metallo Porta blindata Taverna VideoCitofono

Posizione

Referente

Danic Soluzioni Immobiliari

Storico

Pubblicato 04 Mar 2026
Aggiornato 20 May 2026
Sul mercato 77 giorni
ID Annuncio 115499861

Recensioni

Vedi tutte
E

Enzo Musumeci

4.7

Ho trovato l'agenzia molto disponibile e trasparente, mi ha seguito passo dopo passo nella scelta della casa ideale. Dopo il mio trasferimento in una zona più tranquilla di Brindisi, hanno capito subi...

N

Nicola Geraci

4.7

Ho trovato l'appartamento vista mare che cercavo grazie a un'agenzia molto attenta alle mie esigenze. Sono stato seguito con professionalità e hanno ascoltato attentamente quello che volevo, rendendo...

A

Aldo Giannini

4.7

Ricordo ancora il momento in cui ho visitato per la prima volta l’appartamento che avevo scelto: l’accoglienza calorosa e professionale mi ha subito fatto sentire a mio agio. Sono stato molto soddisfa...

C

Corrado Grassi

4.3

Ho scelto questa agenzia perché mi hanno colpito subito per competenza e cordialità. Mi hanno aiutato a trovare un appartamento con vista mare a Brindisi, seguendo ogni passo con professionalità e att...

C

Cristian Cappelli

4.3

Se cercate un'agenzia immobiliare affidabile, consiglio vivamente di rivolgervi a questa. Ho trovato un magazzino perfetto per la mia azienda grazie alla loro cortesia e attenzione alle mie esigenze,...