Vendita Villa

Villa

Strada Valle, 31, Medesano, Parma

Prezzo
Ottimo Affare: 59% sotto la media
150
mq
3
Locali
2
Camere
2
Bagni

Recensisci questo Immobile

Devi essere registrato per lasciare una recensione.

Accedi

Nessuna recensione ancora. Sii il primo!

Descrizione

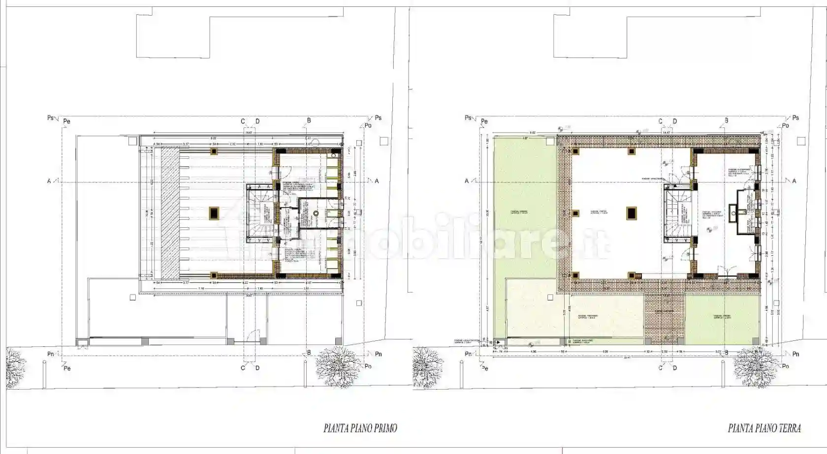
In zona termale, a 15 km da Salsomaggiore e 30 km da Parma, precisamente in una frazione di Medesano, vendesi terreno edificabile con PROGETTO DI VILLA / CASA INDIPENDENTE libera su quattro lati, già depositato in Comune e con oneri pagati.
Cantiere aperto, pronto per la realizzazione della casa.

Il progetto incluso nella vendita è stato fatto da un team di professionisti, ingegneri e architetti, finalizzato alla costruzione di un'abitazione antisismica, con caratteristiche performanti, ad elevato risparmio energetico e senza tralasciare l'attenzione al design (Fatture di progetto dimostrabili).

Tale progetto, senza rinunciare a un tocco di modernità e alle ultime tecnologie edili, conserva le fattezze architettoniche dell'ex bottega di falegnameria del paese e prevede un'abitazione su due livelli, per un totale di 100 mq, oltre ad un ampio portico di circa 100 mq, il giardino di circa 150 mq e posti auto.

Varano Marchesi è un piccolo paese tranquillo immerso nel verde, dove scorre un ruscello ed è possibile fare passeggiate, escursioni e viaggi in bicicletta. Presenti in paese i principali servizi (bar, poste, alimentari, trasporti pubblici) ed una pro-loco.

Possibilità di avvalersi delle detrazioni fiscali.
Contattami per tutti i dettagli.

Caratteristiche

Stato Nuovo / In costruzione
Riscaldamento Autonomo

Servizi e accessori

Bagno per disabili Cucina Esposizione nord, sud, est, ovest Infissi esterni in doppio vetro / PVC

Posizione

Agenzia Immobiliare

Storico

Pubblicato 12 Jan 2026
Aggiornato 07 Apr 2026
Sul mercato 85 giorni
ID Annuncio 115657621