Indietro
Vendita Rustico - Casale

Rustico - Casale

Via Marconi , 7, Roncello, Monza e Brianza

85.000 €
Ottimo Affare: 63% sotto la media
140
mq
4
Locali

Recensisci questo Immobile

Devi essere registrato per lasciare una recensione.

Accedi

Nessuna recensione ancora. Sii il primo!

Descrizione

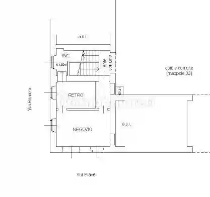
In posizione centrale a Roncello, proponiamo in vendita un rustico da ristrutturare, composto da quattro unità abitative. È già stato redatto e presentato uno studio di fattibilità all'ufficio tecnico del Comune, con parere preventivo favorevole. Il progetto prevede la realizzazione di quattro monolocali indipendenti, ideali per una rendita ottimale.

Questa operazione rappresenta un'ottima opportunità per investitori e piccole imprese, grazie al grande potenziale di redditività. Il rustico ha una superficie complessiva di 140 mq di locali da ristrutturare, oltre a due cantine.

Progetto e render sono disponibili presso il nostro ufficio per consultazioni dettagliate.

Non lasciarti sfuggire questa opportunità! Contattaci per maggiori informazioni e per visionare il progetto.

Classe Energetica: Non soggetto

Caratteristiche

Ascensore No

Posizione

Referente

Unica Casa S.R.L. - UnicaCasa.it

Storico

Pubblicato 13 Jan 2026
Aggiornato 25 Feb 2026
Sul mercato 43 giorni
ID Annuncio 116363513

Recensioni

Vedi tutte
S

Sergio Ferrara

5.0

Ricordo ancora quando ho visto il primo immobile e mi sono sentito subito seguito con attenzione, come se fosse tutto pensato su misura per me. L’agenzia ha ascoltato con attenzione le mie esigenze e...

I

Ivano Natale

4.7

Abbiamo scelto questa agenzia perché fin dal primo incontro ha dimostrato grande affidabilità e una disponibilità che non si trova facilmente. Mi ha seguito passo dopo passo, aiutandomi a trovare la m...

L

Leonardo Gasparini

4.3

Ricordo ancora il momento in cui ho trovato l’appartamento perfetto grazie alla loro disponibilità, anche fuori dagli orari abituali. Sono stato molto soddisfatto del supporto che mi hanno offerto dur...