Indietro
Vendita Casa indipendente

Casa indipendente

Via San Giorgio, Livraga, Lodi

Prezzo
Ottimo Affare: 67% sotto la media
350
mq
4
Locali
2
Camere
2
Bagni

Recensisci questo Immobile

Devi essere registrato per lasciare una recensione.

Accedi

Nessuna recensione ancora. Sii il primo!

Descrizione

ABITAZIONE LUMINOSA SEMI INDIPENDENTE DI 100 MQ CON 350 MQ DI TERRENO E RUSTICI.

La proprietà si trova a Pantigliate una frazione a 2 km da Livraga (LO).
La frazione è circondata da verdi campagne e colline quindi perfetto per chi ama la tranquillità della natura.
A solo un chilometro si incrocia la Via Francigena che costeggia il fiume Pò ideale per camminate, giri in bicicletta e altre attività all'aria aperta.
A 5 min di auto è collocato il casello autostradale di CASALPUSTERLENGO, comodissimo per raggiungere le vicine Milano e Piacenza, mentre a soli 15 min di auto si trova la città di Castel San Giovanni (PC).

La proprietà è così composta:

>> Abitazione semiarredata di 4 locali delle dimensioni di 100 mq (rif. foto 37):
Al piano terra cucina abitabile e sala, ampio locale dispensa, bagno di servizio e spaziosa lavanderia.
Al piano superiore 2 stanze da letto, corridoio e bagno con vasca.
Grondaie NUOVE in rame, caldaia a condensazione NUOVA con relativa canna fumaria esterna in acciaio inox e scarico sul tetto, termosifoni NUOVI.
Attacco antenna TV in tutte le stanze. Finestre con doppio infisso e zanzariere.

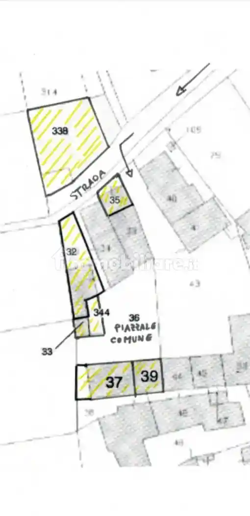
>> Numero 3 rustici.

1) Primo rustico strutturato su 2 piani di dimensioni totali pari a 50 mq e adiacente all'abitazione principale con TETTO APPENA RIFATTO EX NOVO utilizzabile per varie destinazioni (rif. foto 39).

2) Secondo rustico di circa 145 mq formato da 3 strutture adiacenti (rif. foto 33+334+32).
Le particelle 33+344 sono composte da locale semiaperto di circa 15 mq con tetto utilizzabile come ricovero o posteggio auto e ubicata di fronte all'ingresso dell'abitazione principale.
La particella 32 è una struttura su due piani di cui uno chiuso (ad uso deposito 25 mq) con dimensioni totali di 50 mq e tetto alto (tipo fienile) con annessa area recintata 80 mq complessivi.

3) Terzo rustico chiuso di dimensioni 33 mq attualmente utilizzato come
garage auto (rif. foto 35).

>> Terreno recintato di 170 mq attualmente utilizzato come orto (rif. foto 388).

IMPORTATE: Non sono presenti irregolarità edilizie o catastali, per cui la proprietà può essere acquistata tramite mutuo. L'immobile sarà consegnato all'acquirente con planimetrie aggiornate e certificazione energetica.
Nessuna spesa condominiale.
L'immobile è attualmente abitato e si può visionare previo contatto telefonico.
(Valuto scambio con trilocale/bilocale in Lodi)

NO AGENZIE

Caratteristiche

Piano 2 piani: Piano terra, Piano rialzato
Stato Buono / Abitabile
Riscaldamento Autonomo
Garage 2 in box privato/box in garage

Servizi e accessori

Cucina Parzialmente arredato Cantina Giardino privato Infissi esterni in doppio vetro / metallo

Posizione

Luigi Persico Mollica

Agenzia

Referente

Luigi Persico Mollica

Storico

Pubblicato 01 Jan 2026
Aggiornato 15 Apr 2026
Sul mercato 105 giorni
ID Annuncio 116404381