Indietro
Vendita Casa indipendente

Casa indipendente

Pianico, Bergamo

122.900 €
Ottimo Affare: 42% sotto la media
240
mq
5+
Locali

Recensisci questo Immobile

Devi essere registrato per lasciare una recensione.

Accedi

Nessuna recensione ancora. Sii il primo!

Descrizione

Lago d'Iseo – Lovere (vicinanze): occasione irripetibile per imprese e investitori!
Proponiamo straordinaria casa indipendente di 350 mq, situata in posizione strategica a pochi minuti da Lovere e dal Lago d’Iseo. L'immobile, già completamente consolidato (tetto, solette e facciata), rappresenta un’opportunità unica per imprese edili, investitori o famiglie numerose in cerca di una soluzione personalizzabile.
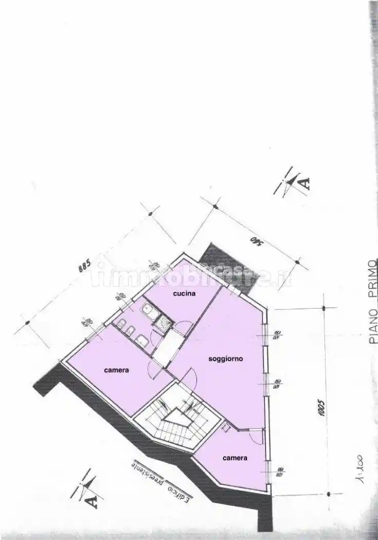
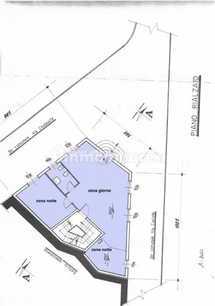
La proprietà è strutturata su più livelli e già suddivisa in tre appartamenti indipendenti al rustico da 85 mq ciascuno, ognuno composto da:
Ampio soggiorno - Cucina abitabile - Due camere da letto - Bagno - Balcone
Impiantistica già predisposta (elettrico, idraulico, riscaldamento)
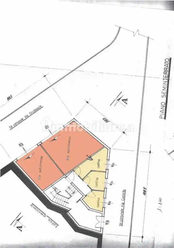
Al piano seminterrato tre autorimesse private e tre cantine spaziose
Soluzione ideale per: investimento a reddito (più unità abitative), ristrutturazione e rivendita, famiglie che desiderano vivere vicine ma in unità separate, chi sogna una casa su misura, scegliendo finiture e dettagli

Contattaci subito al 035 961188 per maggiori informazioni o per organizzare una visita senza impegno!

Caratteristiche

Piano Piano terra
Ascensore No
Stato Buono / Abitabile
Riscaldamento Autonomo

Posizione

Storico

Pubblicato 02 Jan 2026
Aggiornato 25 Feb 2026
Sul mercato 54 giorni
ID Annuncio 116519473

Recensioni

Vedi tutte
C

Cesare Mancuso

4.7

Le mie precedenti esperienze con agenzie immobiliari erano state più lunghe e complicate, ma questa volta è stato tutto diverso. Tullio si è dimostrato molto attento, seguendomi passo passo e curando...

T

Tullio Mattei

4.7

Stavo cercando la casa perfetta a Lovere dopo tanti anni di affitto e finalmente l'ho trovata grazie a loro! Sono stato molto colpito dalla tempestività nelle risposte e dalla precisione nella documen...