Vendita Appartamento

Appartamento

Codogno, Lodi

159.000 €
110
mq
3
Locali
2
Camere
2
Bagni

Recensisci questo Immobile

Devi essere registrato per lasciare una recensione.

Accedi

Nessuna recensione ancora. Sii il primo!

Descrizione

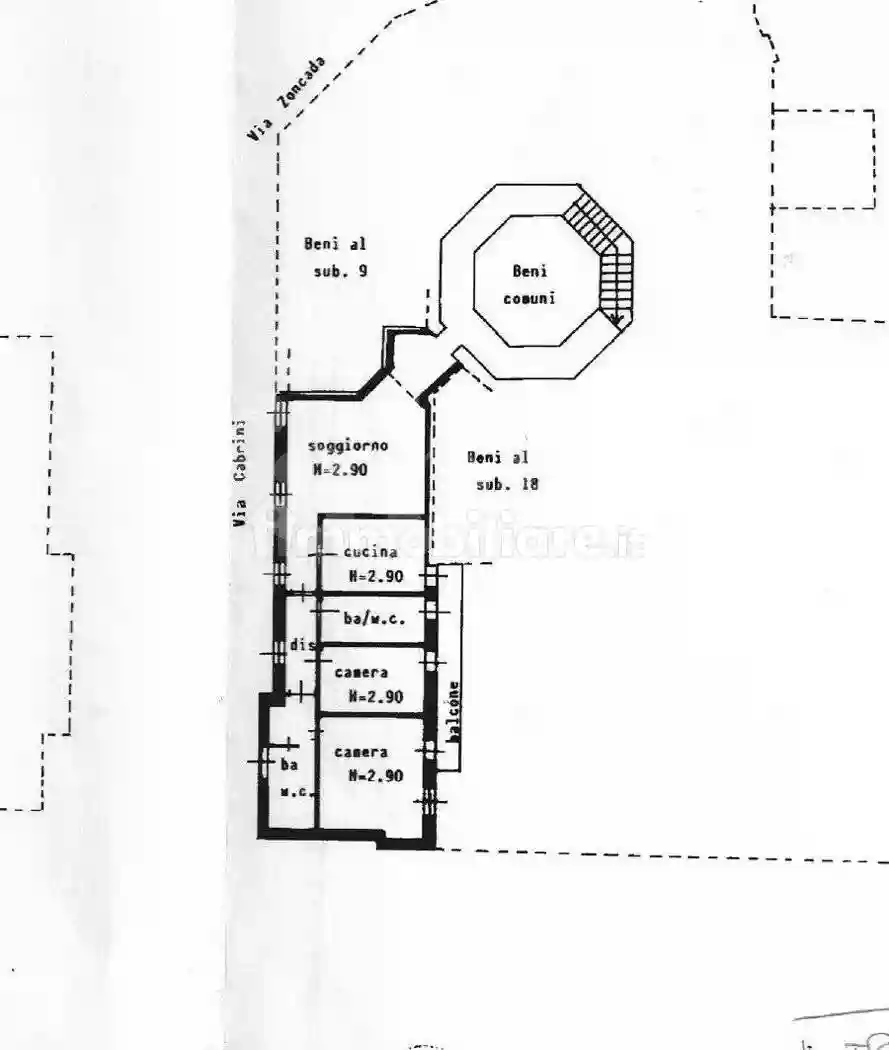
Proponiamo in centro città trilocale abitabile da subito, posto al primo ed ultimo piano e si accede tramite ballatoio interno.

Composto da soggiorno, cucina abitabile, due camera e due bagni, finestrata su ambi i lati esposti così da renderla luminosa.

Balcone interno, riscaldamento autonomo, climatizzatore e zanzariere.

La soluzione è completa di cantina e box.

L'immobile si trova in una zona ben servita, stazione ferroviaria nelle vicinanze, bar, pub, ristoranti, scuole, farmacie a pochi passi di distanza, soluzione ideale per chi cerca comfort e comodità.

LIBERO!!!
Contattaci per organizzare una visita!

Caratteristiche

Piano 1
Ascensore No
Stato Buono / Abitabile
Riscaldamento Autonomo, a radiatori, alimentato a metano

Servizi e accessori

VideoCitofono

Posizione

Referente

Vignati Paolo D.I.

Storico

Pubblicato 13 Jan 2026
Aggiornato 25 Feb 2026
Sul mercato 43 giorni
ID Annuncio 116550677

Recensioni

Vedi tutte
M

Maurizio Gatti

4.7

Grazie di cuore per avermi seguito con tanta cortesia e professionalità. Ho trovato il team molto preciso nella gestione della documentazione e davvero disponibile a aiutarmi in ogni fase della vendit...

C

Carlo Lorenzi

4.3

Ho trovato la casa al mare dei miei sogni grazie a un servizio impeccabile e attento ai dettagli. L'agenzia mi ha seguito passo dopo passo, dimostrando grande professionalità e precisione nella gestio...

A

Aldo Lombardi

4.3

Ho venduto casa dopo un divorzio e devo dire che sono stato molto soddisfatto del percorso. L’agenzia si è dimostrata molto professionale, seguendomi passo dopo passo e dimostrando grande pazienza in...