Vendita Villa

Villa

San Bonifacio, Verona

450.000 €
280
mq
5
Locali
3
Camere
3
Bagni

Recensisci questo Immobile

Devi essere registrato per lasciare una recensione.

Accedi

Nessuna recensione ancora. Sii il primo!

Descrizione

Nella tranquilla zona di Prova, vi presentiamo un'opportunità imperdibile: una porzione di testa di casa a schiera in fase di costruzione. Questo immobile unico si estende su una generosa superficie di 280 mq e include un magnifico giardino privato di ben 270 mq, perfetto per famiglie che desiderano spazio all'aperto o semplicemente amano la natura.

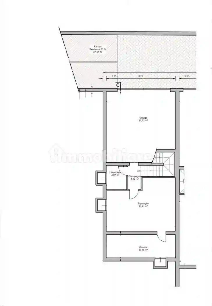
Inserita all'interno di una palazzina trifamiliare, questa soluzione abitativa offre un'ottima privacy e tranquillità. La distribuzione degli spazi è pensata per garantire comfort e funzionalità; gli ambienti sono luminosi grazie alle ampie finestre che affacciano sul verde del proprio giardino. Le metrature delle stanze sono imbattibili come potete verificare nelle planimetrie allegate.

Non perdere l'occasione unica di personalizzare questa splendida proprietà secondo le tue esigenze! Contatta ora la nostra agenzia per maggiori informazioni o per fissare un appuntamento.

Caratteristiche

Ascensore No
Stato Nuovo / In costruzione
Riscaldamento Autonomo, a pavimento, alimentato a fotovoltaico

Servizi e accessori

Taverna

Posizione

Referente

Immobiliare Piasente di Avogaro Silvano

Storico

Pubblicato 15 Jan 2026
Aggiornato 24 Feb 2026
Sul mercato 40 giorni
ID Annuncio 116584349

Recensioni

Vedi tutte
V

Vincenzo Oliveri

5.0

Ricordo ancora il momento in cui ho firmato il contratto, tutto molto rapido e senza intoppi. L'agente è stato flessibile negli orari, riuscendo ad adattarsi alle mie esigenze, cosa che ho molto appre...

E

Ernesto Zampieri

5.0

Mi sono rivolto a questa agenzia perché cercavo un supporto serio e trasparente per trovare un affitto a Verona, visto il mio trasferimento per lavoro. Sono stato molto colpito dalla loro disponibilit...

J

Jessica Bellini

4.7

Durante tutto il processo mi sono sentita davvero supportata e rassicurata, grazie alla professionalità e alla gentilezza del team. Sono stata seguita passo passo, anche nella gestione del mutuo, e ho...

I

Ivano Testa

4.3

Se cercate un'agenzia immobiliare affidabile, consiglio di affidarsi a chi dimostra cortesia e puntualità in ogni appuntamento. Ho trovato questo team molto professionale e attento alle mie esigenze,...

T

Teresa Gallo

4.0

Ho scelto questa agenzia perché cercavo qualcuno che mi seguisse con professionalità e gentilezza in una fase così importante. Sono stata davvero colpita dalla loro tempestività nelle risposte e dalla...