Villa
Vendita
Vendita Villa

Villa

Via Guglielmo Marconi, Maser, Treviso

190.000 €
Ottimo Affare: 27% sotto la media
160
mq
5+
Locali
3
Camere
2
Bagni

Recensisci questo Immobile

Devi essere registrato per lasciare una recensione.

Accedi

Nessuna recensione ancora. Sii il primo!

Descrizione

Rif. BL17 - NUOVA CASA INDIPENDENTE A MASER

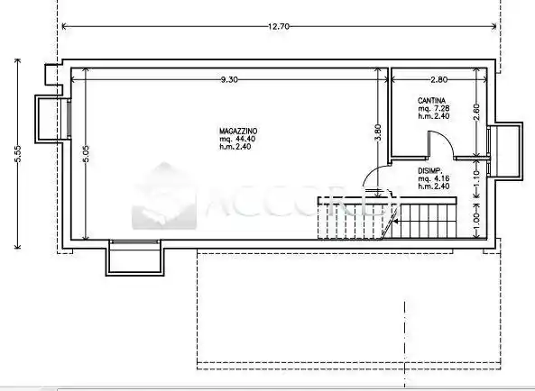
Vendesi a Maser frazione, casa singola, al grezzo avanzato (ora è in fase di costruzione), in zona tranquilla ma vicina ai principali servizi. di 160 mq circa.
Si sviluppa su due piani, al piano terra: 2 bagni, 3 camere, cucina e soggiorno. Al piano interrato: cantina, taverna e lavanderia.
Grande autorimessa coperta e posto auto esterno.

Fotovoltaico, depuratore e predisposizione per aria forzata.
Giardino privato.

L'immobile è in fase di costruzione.

Si intende precisare che gli indirizzi presenti negli annunci non sono identificativi dell'ubicazione precisa dell'immobile, danno un riferimento solo generico della zona al cliente che ricerca, al fine di tutelare la privacy e riservatezza del venditore.
Per visionare l'immobile o per ricevere ulteriori informazioni contattateci: 0423 1904721.
Le nostre sedi : Montebelluna (TV) - Maser (TV) - Conegliano (TV) - Jesolo (VE).

Caratteristiche

Piano Piano terra
Ascensore No
Stato Nuovo / In costruzione
Riscaldamento Autonomo
Garage 2 in box privato/box in garage

Servizi e accessori

Cancello elettrico Taverna Esposizione esterna Accesso per disabili Impianto tv con parabola satellitare Cantina Giardino privato Infissi esterni in doppio vetro / legno

Posizione

Referente

Andrea Signor

Storico

Pubblicato 01 Jan 2026
Aggiornato 15 Feb 2026
Sul mercato 49 giorni
ID Annuncio 117000793

Recensioni

Vedi tutte
R

Rita Landini

5.0

Se cercate un’agenzia immobiliare affidabile, consiglio di sceglierla perché si distingue per tempestività nelle risposte e grande attenzione alla documentazione. Sono stata seguita passo passo, trova...

F

Fabiana Ferri

4.0

Stavo cercando di vendere un locale commerciale a Montebelluna e l'agenzia si è dimostrata molto professionale e competente. Mi hanno aiutata a trovare rapidamente un acquirente, seguendo ogni passo d...